Diciamo che come architettura si discostano da quello che noi definiamo "Chicken Style" ovvero dalla maggior parte delle case che si possono vedere sui social: non sono case in serie nè di serie ma ciascuna di esse è stata progettata appositamente ed esclusivamente per quello specifico committente, poichè le sue esigenze ed i suoi desideri sono diversi da quelli di chiunque altro.
Pubblichiamo alcuni nostri interventi di progettazione inerenti le costruzioni in legno dopo aver ricevuto la necessaria liberatoria da parte dei proprietari.
Gli accordi – in alcuni casi - prevedono l’assoluto divieto di pubblicazione di foto e la non menzione della località se non in generale.
Nessun problema invece per quanto riguarda la citazione dei costi.
Si tratta, come si potrà vedere, di edifici destinati a residenza abituale dei proprietari, realizzati a partire da progetti individuali che tengono conto dei desideri e delle necessità dei committenti: noi, infatti, non ci occupiamo di case in serie né di modifiche a case su catalogo, tantomeno di “casette”: sono realizzazioni al top quanto a prestazioni energetiche ed impianti.
Se vi piacciono i nostri progetti e avete intenzione di costruire la vostra CASA IN LEGNO DA SOGNO, diversa da tutte le altre, saremo lieti di lavorare per voi e con voi alla realizzazione dei vostri desideri.
Troverete tutte le informazioni nelle descrizioni a seguire.
************************************************************************************
Casa unifamiliare nel Nord Est dell'Alto Adige.
Un luogo d'incanto, ai margini del bosco e nei pressi di un laghetto, dove d'inverno occorre fare i conti con 2 metri di neve.
Si tratta di una piccola costruzione (m 8 x
Nessuna parte in legno è stata trattata esattamente come accade in tutte le costruzioni contadine, tipiche del luogo, i masi di montagna.
INTERRATO mq lordi 64 - netti mq 51,15
- locale tecnico mq 7.83
- lavanderia mq 12.41
- cantina mq 10.61
- cantina mq 8.54
- dispena mq 2.60
- disimpegno mq 4.40
- vano scala mq 3.54
- ripostiglio mq 1.22
PIANO TERRA lordi mq 65.63 - netti mq
- bussola d'ingresso mq 3.96
- bagno mq 4.72
- ripostiglio mq 3.82
- corridoio mq 4.67
- vano scala mq 4.76
- soggiorno mq 14.60
- pranzo - cucina mq 17.32
PRIMO PIANO
- bagno mq 11.01
- camera matrimoniale con cabina armadio mq 23.57
- studio mq 11.13
- disimpegno mq 3.76
- vano scala mq 4.76
- balcone mq 6.96
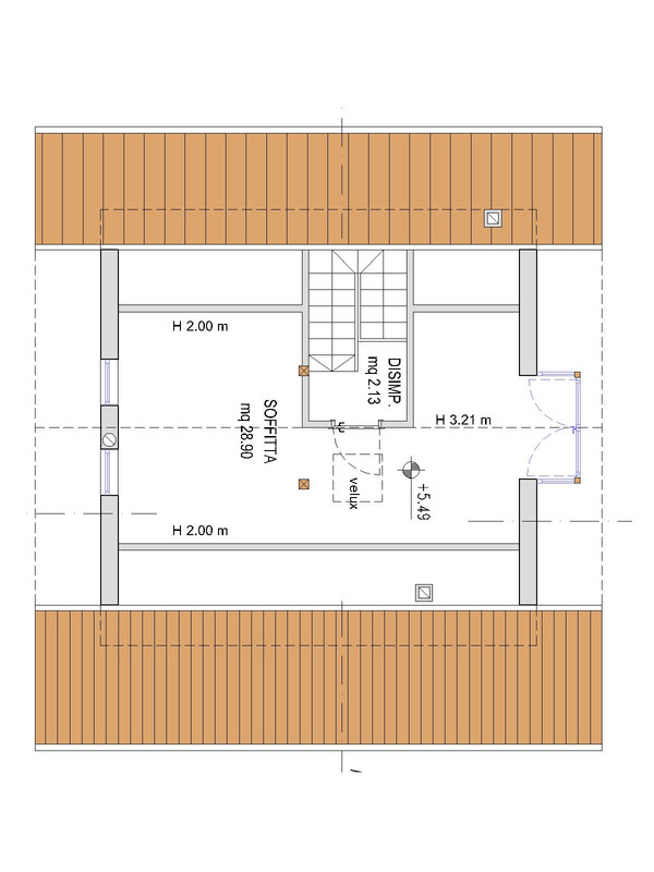
SOTTOTETTO
- disimpegno mq 2.13
- soffitta mq 28.90
Importo di spesa: 330.000 euro
PIANO INTERRATO

PIANO TERRA

PRIMO PIANO

SOTTOTETTO




Questo è il Blower Door Test ovvero un esame che permette di accertare (o meno) l'ermeticità della costruzione al fine di evitare spifferi e quindi consumi inappropriati di energia.
