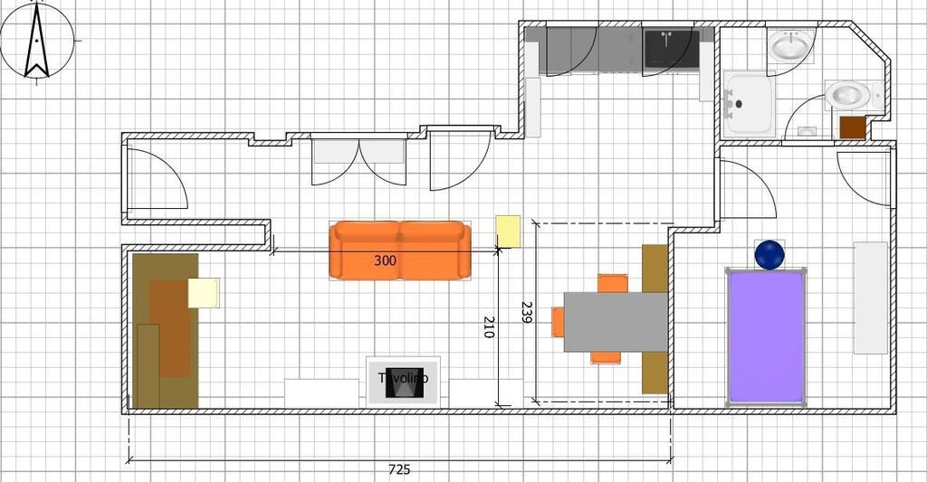
Torno a stressare (quindi scusate in anticipo) perchè in questa lunga estate devo decidere un po' come organizzare la zona giorno (che comprende cucinotto-pranzo-living) del mio bilocale, così a settembre sarò pronta a partire per i vari negozi, spero con le idee più chiare.
Avevo chiesto aiuto a voi per l'angolo cottura, unica cosa che ho risolto girando per negozi e scegliendo alla fine una cucinina lineare senza pensili e con lo stretto indispensabile viste le ridotte dimensioni della parete (260 cm), ante in color tortora e top color caffè.
Adesso devo decidere come disporre il resto delle cose che ho in mente di comprare/fare io cercando di risparmiare, ovvero tavolo da pranzo, una madia che compensi la mancanza di pensili in cucina dove mettere piatti e forse posate e sicuramente pentole, una libreria/mobile per stereo e giradischi (che è essenziale vista la quantità di libri e dischi accumulata), mobiletto tv (che farò io) e un divano.
Mi paiono tantissime cose per lo spazio che mi sembra minimo, comunque, stavo riflettendo e mi sono venute in mente tre diverse opzioni. Se qualcuno di voi fosse così gentile da darmi la sua opinione gliene sarei grata. Ah in tutto ciò c'è una parte che non è negoziabile (per così dire
Opzione 1:


Opzione 2:


Opzione 3:


La cosa del tavolo appoggiato sulla madia (nella mia mente quell'obbrobrio che vedete sarebbe quello

Spero di essere riuscita a spiegarmi e spero di aver ricordato tutto. Scusate per la lunghezza e per le molte foto, ma sono un po' in difficoltà e sarei davvero sollevata se potessi sentire qualche parere esperto. Se avete domande chiedete pure!
E un grazie in anticipo anche solo per la pazienza! Ale


