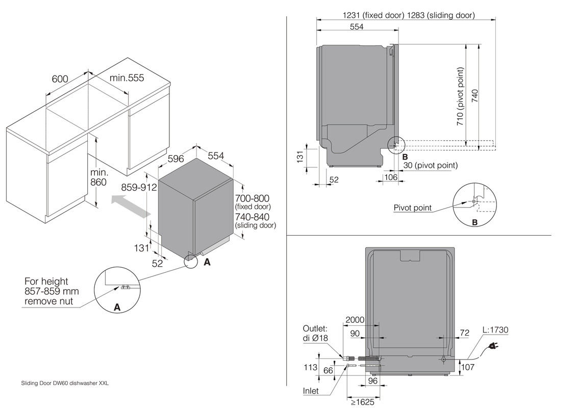
Io avrei già preso l'Electrolux ad occhi chiusi ma il mio compagno non vorrebbe la fascia di tamponamento e questa sarebbe l'unica lavastoviglie che la eviterebbe ma quel grafico di montaggio mi lascia molto perplessa, pensavo che regolando i piedini al massimo non ci sarebbero stati problemi ma tant'è. Credo che arrivando a filo sopra, l'anta più di un tot non possa essere posizionata in alto e che quindi la parte inferiore vada a sbattere sullo zoccolino ma non capisco se sia risolvibile.
Il mobiliere riapre il 27 ma non sono ferrattissimi su queste problematiche e fanno continuamente affidamento a ciò che dice la ditta (che è rimasta ai tempi della Rex) o il loro rivenditore (che sta cercando da 1 mese di vedermi una Haier tall che gli ho già detto 2 volte che non va bene), se riesco a capire in autonomia come muovermi, è meglio.
Re: Lavastoviglie per pannello 84 cm e zoccolo 6 cm
#17ciao, non so se hai già risolto, se servisse ho passato lo stesso caos a luglio: la electrolux (EEZ68600W) è stata la mia soluzione ma avevo anta da 78. da 84 è davvero complicato.
(Confermo la poca asciugatura rispetto alla vecchia bosch)
le uniche alternative che avevo trovato sono le versioni xxl: sono più alte e tengono ante più alte ma devi avere lo spazio per metterle: io ad esempio con le gole non riuscivo a farcele stare
(Confermo la poca asciugatura rispetto alla vecchia bosch)
le uniche alternative che avevo trovato sono le versioni xxl: sono più alte e tengono ante più alte ma devi avere lo spazio per metterle: io ad esempio con le gole non riuscivo a farcele stare
Re: Lavastoviglie per pannello 84 cm e zoccolo 6 cm
#18Non abbiamo ancora risolto, nel senso che non abbiamo ancora ordinato nulla ma ormai il tempo stringe ed entro la prossima settimana dovremo decidere cosa fare.guybrush ha scritto: ciao, non so se hai già risolto, se servisse ho passato lo stesso caos a luglio: la electrolux (EEZ68600W) è stata la mia soluzione ma avevo anta da 78. da 84 è davvero complicato.
(Confermo la poca asciugatura rispetto alla vecchia bosch)
le uniche alternative che avevo trovato sono le versioni xxl: sono più alte e tengono ante più alte ma devi avere lo spazio per metterle: io ad esempio con le gole non riuscivo a farcele stare
Noi non abbiamo la gola per cui possiamo arrivare fino a 90 cm di incasso ma il problema è essenzialmente l'altezza del pannello.
Come ti trovi con la lavastoviglie? A parte l'asciugatura che di fatto è una semplice porta aperta
Re: Lavastoviglie per pannello 84 cm e zoccolo 6 cm
#19prova a vedere se le asko versione xl supportano quella altezza.
per l'asciugatura ne sto parlando qui:
https://www.plcforum.it/f/topic/320709- ... nt-2353238
per l'asciugatura ne sto parlando qui:
https://www.plcforum.it/f/topic/320709- ... nt-2353238
Re: Lavastoviglie per pannello 84 cm e zoccolo 6 cm
#20Ciao, in effetti sono riuscita a trovare una Asko che monti il pannello da 84 cm, modello DSD545KXXL (https://it.asko.com/prodotti/cucina/lav ... 0000739512) ma è costosissima, 1399€ dal rivenditore della zona ed online è introvabile.
Stiamo decidendo cosa fare, avevamo un budget di 650/750 euro e questa verrebbe il doppio, se davvero durasse 20 anni, come la mia precedente Rex, ci potremmo pesare ma il terrore che tra 5/6 anni sia da buttare un po' mi blocca.
Sulla carta sarebbe perfetta.
Stiamo decidendo cosa fare, avevamo un budget di 650/750 euro e questa verrebbe il doppio, se davvero durasse 20 anni, come la mia precedente Rex, ci potremmo pesare ma il terrore che tra 5/6 anni sia da buttare un po' mi blocca.
Sulla carta sarebbe perfetta.
