sono nuovo del forum e colgo l'occasione per salutare tutti.
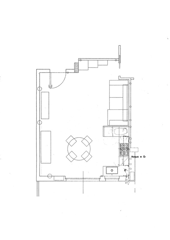
Ho necessità di un aiuto per capire come meglio organizzare gli spazi nel soggiorno/cucina della casa dove andrò a vivere spero a breve. Si tratta di un open space di circa 38 mq complessivi (come da piantina) e diciamo che la questione è abbastanza complessa per via di alcuni vincoli che limitano le scelte progettuali. Li vado di seguito ad elencare brevemente:
1) Utenze già predisposte e non è possibile effettuare modifiche (l'unica cosa che si potrebbe fare è far arrivare la "corrente" nel caso in cui optassimo per un'isola con piano ad induzione come indicato in planimetria);
2) Come conseguenza la cucina deve necessariamente occupare lo spazio in besso a dx dove sono predisposti attacco acqua calda/fredda e scarico lavastoviglie (anche attacco gas ma siamo propensi per optare in ogni caso per un piano ad induzione).
Fondamentalmente gli elementi da inserire sono: divano (un tre posti senza isola), mobile tv, tavolo e cucina. La soluzione che abbiamo studiato è quella di integrare nell'isola una sorta di corpo aggettante per inglobare la tv e disporre il divano a ridosso della parete a sx.
Allego una planimetria con misure e una planimetria con il progetto pensato da noi, allego inoltre un paio di idee da cui abbiamo preso spunto.
Vi sarò grato per qualsiasi consiglio/informazione riuscirete a fornirci.





Ciao.