Abbiamo finalmente comprato il piccolo appartamento / mansarda che affittavamo! Piano pianino lo stiamo rinnovando, tra poco vorremmo fare dei lavori in cucina, che e’ abbastanza piccolina e vorremmo sfruttar lo spazio al massimo.
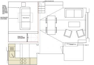
Le misure sono infatti 2.45m in lunghezza e 1.85m in larghezza, con il tetto spiovente. Aggiungo una una “piantina” per mostrare la disposizione che abbiamo al momento.

Al momento abbiamo una colonna per il frigo/congelatore: io preferirei uno frigorifero piccolo cosi’ possiamo usare il piano di lavoro meglio, invece il mio compagno preferirebbe un frigo grande e vorrebbe pure un lavastoviglie (di 45cm)…
Ho fatto qualche disegno con il kitchen planner dell’Ikea ma c’e’ sempre qualcosa che non funziona.


Qualche idea per come potremmo utilizzare meglio gli spazi che abbiamo al momento?
Grazie infinite
Mina

