sto progettando l'arredamento per la mia nuova casa e avrei bisogno di qualche opinione da parte di voi esperti.
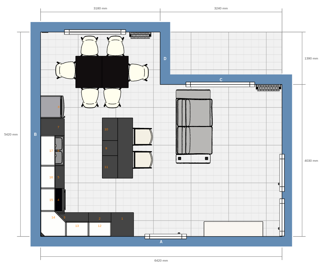
Si tratta di un ingresso con cucina e soggiorno open space di circa 30mq al piano terra, con finestra e portafinestra esposte entrambe a nord.
Siamo arrivati a questa soluzione perché ci consente di avere una cucina capiente e spaziosa, un tavolo da pranzo affacciato sulla finestra che da sul giardino e un divano accanto alla portafinestra anch'esso sul giardino.
L'isola è composta da 3 moduli (60-40-60) con cassetti di profondità 37cm con un piano da 40cm sull'altro lato per la colazione.





La stessa soluzione era stata adottata dai precedenti proprietari, ecco com'era la situazione:



