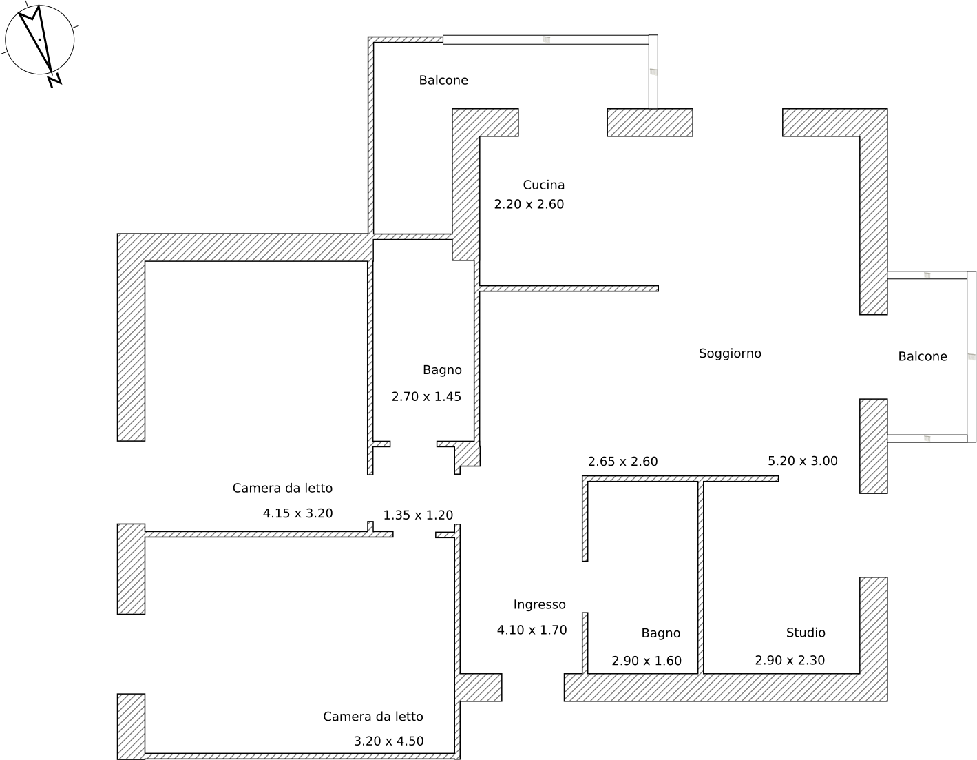
come da titolo del thread, avrei bisogno di alcuni consigli su come ristrutturare il mio nuovo appartamento di circa 80mq, attualmente suddiviso in 4 stanze + bagno e cucina, come da piantina allegata:

- secondo bagno
- soggiorno ampio, magari con cucina a vista
- eventualmente un piccolo ripostiglio

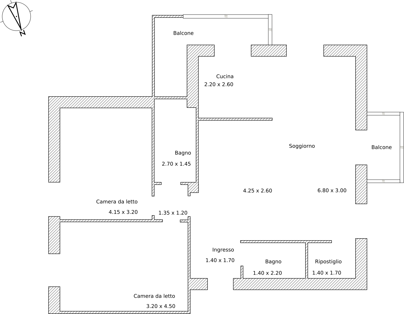
- eliminato la parete tra cucina e soggiorno
- creato un muretto divisorio tra cucina e soggiorno
- diviso lo studio per ricavare il secondo bagno
- lo studio rimpicciolito avrebbe una parete mobile o una porta scorrevole più o meno a tutta altezza

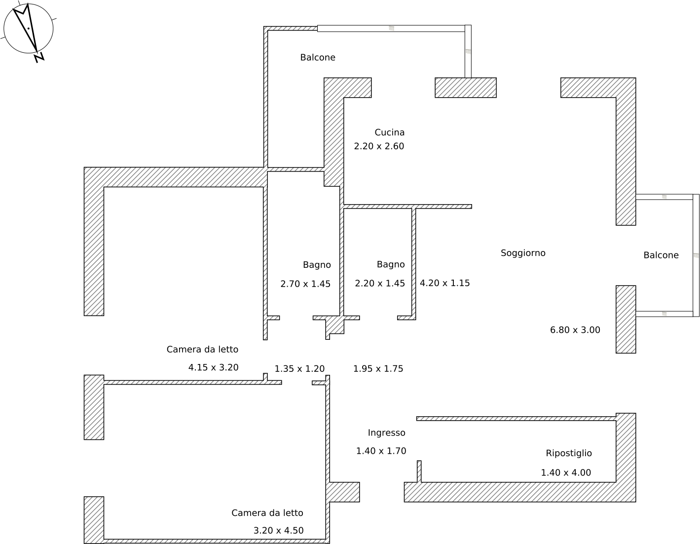
- eliminato la parete tra cucina e soggiorno
- creato un muretto divisorio tra cucina e soggiorno
- eliminato lo studio
- creato vano per secondo bagno e ripostiglio

- eliminato la parete tra cucina e soggiorno
- creato muretto divisorio tra cucina e soggiorno
- eliminato lo studio
- creato secondo bagno di fianco a quello principale
- creato ripostiglio
Avete dei suggerimenti da darmi?
Vi ringrazio in anticipo.