AIUTO! COME SISTEMO IL SOGGIORNO?

#1
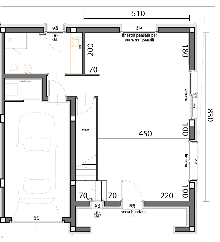
Ciao a tutti, sono nuova!
Vorrei farvi vedere la piantina del piano terra della nostra nuova casa. E' una abbinata con un grande giardino.
Per ora la casa è in costruzione ma io sto già fantasticando e pensando a come la potrei sistemare una volta finita.
Voi come sistemereste l'open space soggiorno/cucina? Io ho già qualche idea ma vorrei vedere voi che idee tirate fuori :lol:
Premetto che mio moroso è cuoco e desidera una cucina funzionale e spaziosa.

Grazie a tutti

Immagine
Ultima modifica di martina.segato il 20/03/19 12:43, modificato 1 volta in totale.

Re: AIUTO! COME SISTEMO IL SOGGIORNO?

#5
Olabarch ha scritto:le misure non sono state rilevate in loco, vero?????
Avremmo bisogno delle misure P R E C I S E, al mezzo centimetro.
Ciao,
per ora ho solo la planimetria, sono andata per difetto per le misure.
Vorrei solo una indicazione di massima, non predendo progetti già esecutivi ;)