in vista di una "pesante ristrutturazione" vorrei pensare ad una nuova disposizione per gli interni di questo appartamento:


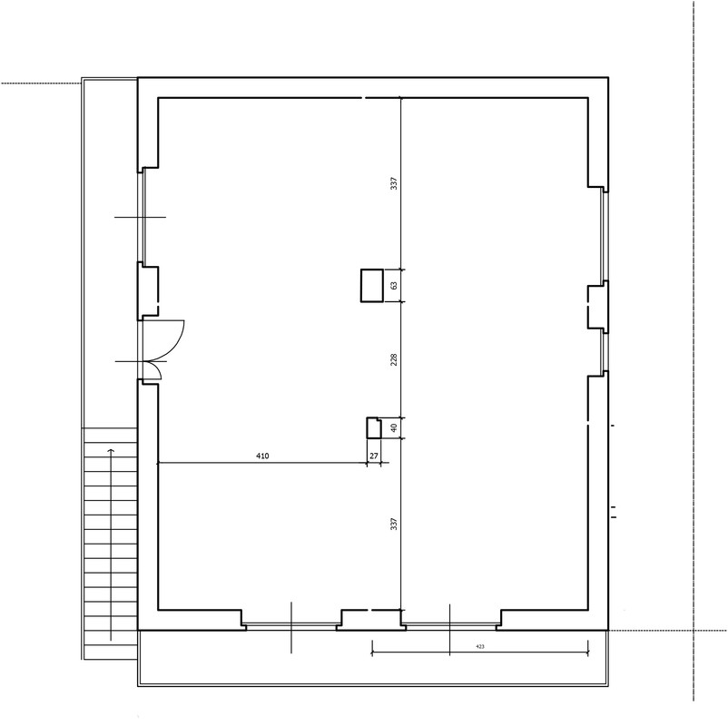
L'appartamento si trova al primo piano e al momento vi si accede tramite la scala esterna. Al piano di sotto ci sono dei garage.
Innanzitutto mi piacerebbe sapere cosa ne pensate dell'attuale disposizione. Ci sono cose che a prima vista vi sembrano sbagliate e migliorereste?
... io cosa vorrei?
- eliminare la scala esterna e creare un ingresso al piano inferiore (pensavo ad una scala con parapetto che si apre direttamente nella zona giorno);
- open space con porta-finestra sul terrazzo (possibilmente il lato con la cucina), penisola/isola e tavolo da pranzo;
- 1 camera matrimoniale e 1 cameretta (di dimensioni inferiori rispetto a quelle esistenti).
... e se avanza dello spazio:
- cabina armadio/ripostiglio/doppio bagno
Non ci sono particolari vincoli per aperture di finestre né per dimensioni delle camere.
Che ne pensate?
Grazie a chiunque mi vorrà dedicare un po' del suo prezioso tempo!