Buona sera a tutti, ho scoperto questo bellissimo forum e ho deciso di chiedere consiglio qui, avendo iniziato una ristrutturazione nella casa nuova.
abbiamo un idea su come disporre la zona giorno, ma qualche consiglio non guasta mai...
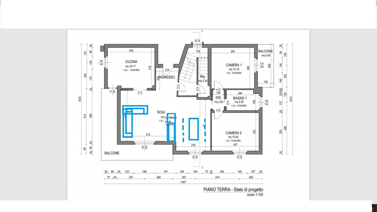
-Cucina: come si vede dalla planimeria l'idea era una cucina lineare sulla parete in alto da 435cm, con isola da L 245cm x 83 di profondità, che si affaccia sulla sala con una porta scorrevole da 160cm ( c'è scritto 130 ma sarà 160) dove in linea dovrebbe esserci il tavolo della sala da pranzo...
-Soggiorno: la zona tv e mobile della sala la immaginavo sulla parete a dx del soggiorno di 474cm.. con divano di fronte.. ( lo so il divano non sarebbe appoggiato interamente ad una parete.
Spero di essermi spiegato su come avevamo pensato di disporla... ovviamente sono qua per consigli quindi ringrazio anticipatamente chiunque mi aiuterà a capire dove si può migliorare o eventualmente errori che sto commettendo. Grazie.
https://postimg.cc/PP5hyDzR
Edit: https://postimg.cc/NKw4mjfM questo è l 'idea disegnata con un programma di disegno, i mobili della cucina sono reali.... tutto il resto, tavolo, divano, mobile sala etc... è indicativo era solo per vedere ipotetici ingombri.
cosa cambiereste?
Re: Zona giorno progettazione
#2Ultimamente direi che i camini che vedo rompono parecchio gli zebedei... sei sicuro di volere un camino? sei sicuro di volerlo in quella posizione? Io lo eliminerei.
Inoltre, anche se capisco la logica "tavolo vicino a cucina", nel tuo caso farei un'eccezione alla regola e scambierei di posto tavolo e divano, dato che quest'ultimo mi sembra eccessivamente sacrificato.
Inoltre, anche se capisco la logica "tavolo vicino a cucina", nel tuo caso farei un'eccezione alla regola e scambierei di posto tavolo e divano, dato che quest'ultimo mi sembra eccessivamente sacrificato.
Sei incorreggibile. Sallo.
Re: Zona giorno progettazione
#3sul camino si/no non entro nel merito (è bello ma "impegnativo"); però messo dove l'hai pensato tu... cui prodest?
quando sei a tavola non te lo godi; quando sei sul divano non lo vedi.
ps.
se proprio ti serve un tavolo da 10, prova a ruotarlo di 90°. m sembra che "ci entri" meglio.
quando sei a tavola non te lo godi; quando sei sul divano non lo vedi.
ps.
se proprio ti serve un tavolo da 10, prova a ruotarlo di 90°. m sembra che "ci entri" meglio.
Re: Zona giorno progettazione
#4sicuro di volere un camino si, l ho sempre voluto e desiderato, da la sensazione di calore e di casa, io abito in collina e intorno a me ci sono prati, boschi, montagne e un lago.... in quella posizione ti dico non ne sono convinto... ma non sono in grado di trovare altri posti sinceramente in quella sala.... all'angolo vicino alla porta doppia scorrevole non ci sta... verso la parete dove avevo pensato la zona tv nemmeno.... non ho idea di dove metterlo... ma si mi piacerebbe....mamma santina ha scritto: ↑03/08/20 16:22Ultimamente direi che i camini che vedo rompono parecchio gli zebedei... sei sicuro di volere un camino? sei sicuro di volerlo in quella posizione? Io lo eliminerei.
Inoltre, anche se capisco la logica "tavolo vicino a cucina", nel tuo caso farei un'eccezione alla regola e scambierei di posto tavolo e divano, dato che quest'ultimo mi sembra eccessivamente sacrificato.
inoltre oltre al discorso calore ed estetico che da il camino, lo vorrei mettere anche per un discorso di riscaldamento alternativo, in quanto tra legna e pellet... (preferiamo pellet) , non avrei problemi ad avere ottimi prezzi... quindi diciamo era anche un discorso forse di risparmio... abbattendo più possibile l'utilizzo del metano.... (abbiamo i termosifoni).
per divano sacrificato dici un po piccolo? divano e tavolo sono stati disegnati un po cosi... tanto per gli ingombri....
PS: avevo già disegnato una versione come quella che hai proposto tu... c'è ancora il camino

Grazie mille cmq per gli aiuti fanno sempre riflettere
https://postimg.cc/JyzTkXyc
Ultima modifica di Merlino2015 il 03/08/20 20:39, modificato 2 volte in totale.
Re: Zona giorno progettazione
#5il tavolo avevo provato a metterlo anche girato a 90° non stava male... per i posti, non deve essere per forza da 10... l ho disegnato cosi per aver i limiti degli ingombri... poi se il tavolo invece di 270cm sara 200/220 va bene lo stesso...dave4mame ha scritto: ↑03/08/20 17:22sul camino si/no non entro nel merito (è bello ma "impegnativo"); però messo dove l'hai pensato tu... cui prodest?
quando sei a tavola non te lo godi; quando sei sul divano non lo vedi.
ps.
se proprio ti serve un tavolo da 10, prova a ruotarlo di 90°. m sembra che "ci entri" meglio.
sul discorso camino, non avrei idea di dove piazzarlo... il vecchio camino, nonchè la vecchia canna fumaria che esiste ancora... si trova all'angolo sx dove c'è la doppia porta scorrevole ... ma li mettendo la porta un camino non ci sta più.... non ho la piu pallida idea su dove posizionarlo... si accettano consigli....
https://postimg.cc/Wh9SP3Yd
Re: Zona giorno progettazione
#6Se camino dev'essere, prova a pensarlo in quella rientranza del vano scale. Oppure nell'angolo in cui è già presente la canna fumaria, riducendo la larghezza della porta della cucina.
No, dico che messo li così in un angolo serve solo per guardare la TV. Se ti arriva qualcuno è vuoi fare due chiacchiere siete lì che guardate il muro a due metri e mezzoper divano sacrificato dici un po piccolo?

Ps: mi togli una curiosità? Perché hai messo il letto marrimoniale nella stanza più piccola?
Con un armadio ad angolo poi... mi sembra migliorabile

Sei incorreggibile. Sallo.
Re: Zona giorno progettazione
#7nel vano scale studiare una canna fumaria deve essere un casino... perchè sopra ho un altro piano sempre nostro... la casa è su 3 piani... ed in pratica eccola qui: https://postimg.cc/K1xKQrDLmamma santina ha scritto: ↑03/08/20 20:53
Se camino dev'essere, prova a pensarlo in quella rientranza del vano scale. Oppure nell'angolo in cui è già presente la canna fumaria, riducendo la larghezza della porta della cucina.No, dico che messo li così in un angolo serve solo per guardare la TV. Se ti arriva qualcuno è vuoi fare due chiacchiere siete lì che guardate il muro a due metri e mezzoper divano sacrificato dici un po piccolo?
Ps: mi togli una curiosità? Perché hai messo il letto marrimoniale nella stanza più piccola?
Con un armadio ad angolo poi... mi sembra migliorabile![]()
la porta si andrebbe ridotta parecchio circa 120/130 max max..... e mi pareva piccola o sono io a non avere molto il senso delle misure....
sulla camera... ok ho bisogno di consigli anche su quella




Re: Zona giorno progettazione
#8Non nel vano scale, fuori dal vano scale. Sicuramente se il camino è al piano terra quello che accade nel seminterrato non interessa (è lì che c'è l'unico fastidio, ovvero la porta che dal portico entra nel disimpegno).
Il piano sopra è identico al piano terra e la mansarda non dovrebbe darti problemi visto che il vano scale nella sua parte obliqua è di proporzioni ridotte...
Se invece vuoi dire che il vano scale è in cemento armato e i solai che ci si appoggiano possono essere problematici da forare, allora capisco già di più.
Il piano sopra è identico al piano terra e la mansarda non dovrebbe darti problemi visto che il vano scale nella sua parte obliqua è di proporzioni ridotte...
Se invece vuoi dire che il vano scale è in cemento armato e i solai che ci si appoggiano possono essere problematici da forare, allora capisco già di più.
Sei incorreggibile. Sallo.
Re: Zona giorno progettazione
#9si intendo proprio quello... discorso foratura è un casino... anche perchè il piano sopra (mansarda) non lo vorremmo toccare/ forare/ "distruggere"mamma santina ha scritto: ↑03/08/20 22:30Non nel vano scale, fuori dal vano scale. Sicuramente se il camino è al piano terra quello che accade nel seminterrato non interessa (è lì che c'è l'unico fastidio, ovvero la porta che dal portico entra nel disimpegno).
Il piano sopra è identico al piano terra e la mansarda non dovrebbe darti problemi visto che il vano scale nella sua parte obliqua è di proporzioni ridotte...
Se invece vuoi dire che il vano scale è in cemento armato e i solai che ci si appoggiano possono essere problematici da forare, allora capisco già di più.

anche perchè... ti dico un altra cosa...


tornando alla sala e divano... sulla parete opposta magari sarebbe buono predisporre ugualmente zona tv non si sa mai di voler invertire... perchè adesso mi hai messo la fissa del divano sacrificato

Grazie mille davvero mamma santina, apprezzo davvero le riflessioni e i consigli...
Re: Zona giorno progettazione
#10interessante ristrutturazione...
Ovviamente ci sono un po' di elementi che modificherei ma, non sapendo i motivi per i quali sono state compiute determinate scelte, non discuto.
Però....
1. farei la centrale termica molto più ampia perchè fra bollitori, domotica ecc lo spazio non è mai sufficiente.
2. non aprirei le scale dal momento che sopra non ci sono camere da letto ma un altro appartamento....
3. come dice mamma santina il caminetto è buttato lì....... ed è un peccato.
4. non mi farei troppi problemi per la canna fumaria dal momento che è tutta casa tua
5. come al solito... il divano rivolto verso la televisione è orripilante. Scusa sai.... ma se sei in campagna, al limitare del bosco, non è più bello guardare fuori anzichè un muro???????
Ovviamente ci sono un po' di elementi che modificherei ma, non sapendo i motivi per i quali sono state compiute determinate scelte, non discuto.
Però....
1. farei la centrale termica molto più ampia perchè fra bollitori, domotica ecc lo spazio non è mai sufficiente.
2. non aprirei le scale dal momento che sopra non ci sono camere da letto ma un altro appartamento....
3. come dice mamma santina il caminetto è buttato lì....... ed è un peccato.
4. non mi farei troppi problemi per la canna fumaria dal momento che è tutta casa tua
5. come al solito... il divano rivolto verso la televisione è orripilante. Scusa sai.... ma se sei in campagna, al limitare del bosco, non è più bello guardare fuori anzichè un muro???????
Re: Zona giorno progettazione
#11Re: Zona giorno progettazione
#12ma..... metter mano alla scala?
E' parecchio fastidiosa messa così.
E le finestre?
Magari intervenire anche su quelle......
E' parecchio fastidiosa messa così.
E le finestre?
Magari intervenire anche su quelle......