Disposizione sala/cucina + piano superiore!

#1
Questo dovrebbe essere il progetto definitivo per la ristrutturazione della casa che devo acquistare.
Mi piacerebbe avere qualche consiglio su come arredare la zona giorno e la cucina.
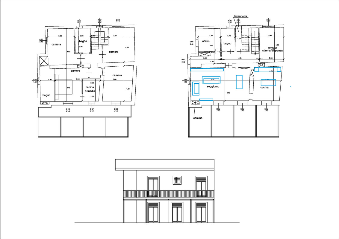
Considerate che le tre portefinestre danno sul giardino. l'entrata della casa principale sarà sulla sinistra (la porta 0.90x2.40) fra l'ufficio e il soggiorno. Secondo voi ci potrebbe stare un'isola/penisola in cucina? Il tavolo da pranzo mi piacerebbe averlo in soggiorno magari vicino alla cucina e nella zona camino un divano grande ( ad L?) con la zona tv.
Vi allego la piantina di tutta la casa.
Grazie anticipatamente delle vostre risposte!

https://ibb.co/nRnXsDf
Ultima modifica di Bepi88 il 08/08/20 21:54, modificato 1 volta in totale.

Re: Arredamento sala/cucina!

#2
Ciao, secondo me il tavolo da pranzo starebbe bene messo per lungo davanti alla finestra centrale, così sarebbe vicino alla cucina senza occupare troppo spazio nel resto del salotto.
La cucina è spaziosa, una penisola ci starebbe bene, magari con area snack.
Metterei la TV sul lato del camino per godere anche della vista del fuoco acceso dal divano, che posizionerei parallelo al tavolo da pranzo.

Re: Arredamento sala/cucina!

#3
Grazie Mercy delle idee! Ah dimenticavo di dirvi che davanti alla finestra della cucina (all'interno della cucina) farò una botola a filo del pavimento nella quale si svilupperà una scala a chiocciola per scendere in cantina, almeno spero di poterlo realizzare :P Qualcuno ha altre idee?

Re: Arredamento sala/cucina!

#4
Altra domanda.. Secondo voi il camino va bene cosi per il lungo o lo spostereste che fa proprio l'angolo?
Scordavo di dirvi che la casa sarà completamente elettrica senza gas, quindi induzione come piano cottura e anche sotto le finestre non ci saranno riscaldamenti perchè ci sarà quello a pavimento.

ps: come attacchi cucina/cappa/acqua/corrente non ci sono problemi perchè la casa è in completa ristrutturazione quindi si possono mettere ovunque. Grazie

Re: Disposizione sala/cucina + piano superiore!

#6
Bepi88 ha scritto:
08/08/20 21:56
Nessuno nessuno? Altra cosa.. Al piano superiore, nella camera padronale è giusto mettere il bagno per il lungo e la cabina armadio sulla dx o è meglio fare il contrario? Dove è adesso la cabina armadio è abbastanza spaziosa?
Ciao! Secondo me se li inverti ci guadagni parecchio, principalmente perchè disimpegni il bagno che così può essere al servizio di tutto il piano e anche delle altre camere, non solo della matrimoniale

Re: Disposizione sala/cucina + piano superiore!

#8
Si avete ragione! Per il rumore sicuramente è meglio.. provvedo a cambiare il disegno! Invece per sala cucina? Avete idee di disposizione?
Altra domanda..ma è vero che adesso i caminetti aperti non si possono più installare? Solo quelli col vetro protettivo davanti si possono mettere! È vero?

Re: Disposizione sala/cucina + piano superiore!

#12
Grazie a tutti per le risposte! Per la cucina pensavo se si riusciva con gli spazi di fare lato lungo, lato corto più un pezzo per agganciarci una penisola ma non so se basta lo spazio! L'idea della sala non mi dispiace, stavo addirittura pensando se fosse meglio lasciare solo la portafinestra centrale (magari allargandola) e fare finestre normali le altre due che sono vicine per sfruttare meglio gli spazi che dite?
Per il camino sarebbe buono lasciarlo li perché pensavo di fare un barbecue esterno confinante col muro per sfruttare la stessa canna fumaria!

Re: Disposizione sala/cucina + piano superiore!

#13
mi chiedo: perchè?
Ma perchè se dovete RISTRUTTURARE in maniera pesante e non dando solo una mano di bianco, non ampliate le finestre?
A meno che non ci siano vincoli paesaggistici o di tutela di altro tipo, queste aperture sono orripilanti!
Larghezza 120 significa che non riesci nemmeno ad uscire aprendo solo un'anta!
Ma poi... hai paura della luce?
Hai tutto il piano terra coperto dal balcone soprastante e non ampli i serramenti?
Mah!

per quanto riguarda i caminetti non esiste alcuna legge che ne imponga la chiusura.
E poi mai e poi mai una canna fumaria in comune!

ma qui niente cantina, centrale termica....?

Re: Disposizione sala/cucina + piano superiore!

#14
Le finestre adesso sono di 90, c'è il vincolo paesaggistico non so se si possono ampliare più di cosi! Mi sono espresso male per la canna fumaria, intendevo che con lo stesso canale si riesce a sfruttare per 2 canne fumarie 😀
La cantina è fra la cucina e la parte esterna è da valutare una "botola" con scala a chiocciola se si riesce a fare. La centrale termica se le leggi lo permettono verrà all'esterno dietro la casa, se non si potesse fare li andrà sacrificata la lavanderia per la centrale termica purtroppo!