vorrei ri-arredare la zona giorno della mia casa che si trova collina in provincia di Udine.
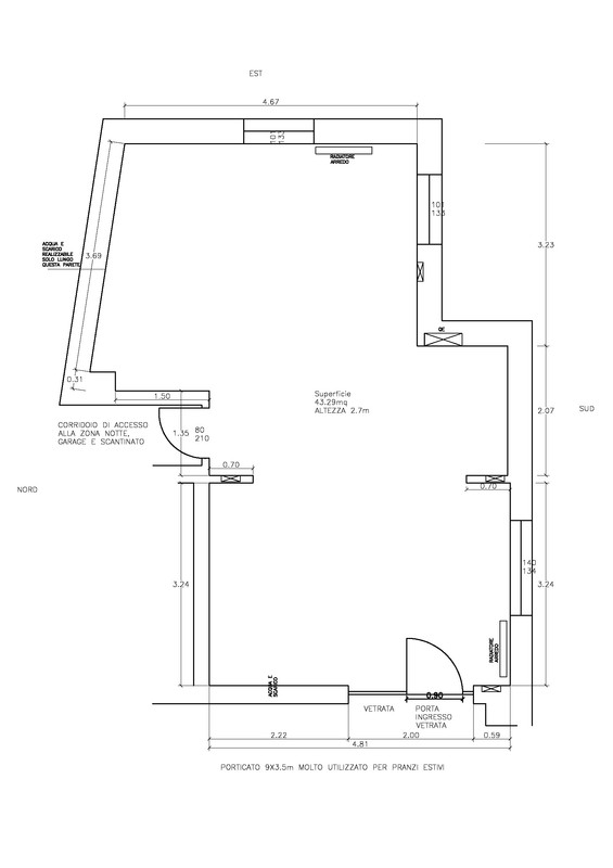
La piantina quotata che allego non è l'attuale ma è già la risultante dopo l’esecuzione di alcuni lavori che farò.
Eseguirò la demolizione delle pareti interne che attualmente separano la zona soggiorno dalla cucina, demolizione di un caminetto, la chiusura dell’ingresso attuale e il suo spostamento verso il porticato che si affaccia verso uno spettacolare panorama..
Gli unici vincolo sono:
- gli scarichi per il lavandino della cucina possono essere realizzati solo dove indicato;
- Il pavimento sarà in legno;
- Il divano sarà in pelle;
- il quadro elettrico e le scatole di derivazione indicate;
Io ho già qualche idea, anche per poter recuperare parzialmente i mobili della cucina che è ancora in buonissimo stato,
ma sono curioso di vedere le Vs proposte.
ringrazio in anticipo
