Consigli per arredare il soggiorno

#1
Buongiorno a tutti!
Avrei bisogno di alcuni vostri consigli, dato che scorrendo le varie sezioni del forum, vedo che ci sono persone decisamente preparate.
Io e mia moglie stiamo ristrutturando casa e in questo specifico caso mi piacerebbe avere qualche idea su come arredare il soggiorno e carpire i vostri preziosi consigli.
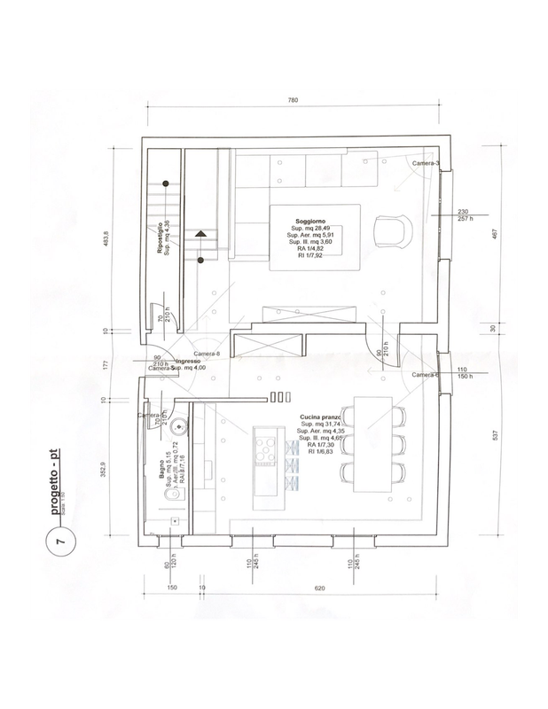
La piantina ha una disposizione interna immaginata dal mio architetto, il problema è che lui non è propriamente un interior design o comunque, come in tanti ambiti della vita, mi piace avere diversi pareri e opinioni, per costruirne uno mio, soprattutto quando non sono ferrato su un argomento.
Per quanto riguarda il budget non vorrei sforare i 10k, ci piacerebbe un design moderno minimale con colori chiari contando che abbiamo come pavimento un parquet rovere miele naturale e la casa è esposta a nord quindi non propriamente luminosa, sebbene abbiamo delle finestre abbastanza grandi. Un altro dato importante è che abbiamo un soffitto di 2,80, ma lo ribasseremo di 10 cm per inserire un controsoffitto con veletta verso la porta finestra e quasi sicuramente la parete dove posizioneremo il televisore (quella divisoria tra soggiorno e cucina) sarà di 3,30 m (abbiamo dovuto "aggirare" un pilastro portante).
Spero di riuscire ad allegare in modo corretto la piantina e che sia completa.
Grazie a tutti per l'attenzione e per il vostro tempo dedicato!

Buona serata



Immagine

Re: Consigli per arredare il soggiorno

#2
Fede85 ha scritto:
17/07/21 20:17
... abbiamo un soffitto di 2,80, ma lo ribasseremo di 10 cm per inserire un controsoffitto

Non condivido
e quasi sicuramente la parete dove posizioneremo il televisore...
Che vuol dire? Non manca un verbo? Si deve leggere che quasi sicuramente "eliminerete" la parete? Ma poi il televisore? Boh, non capisco
Sei incorreggibile. Sallo.

Re: Consigli per arredare il soggiorno

#3
mamma santina ha scritto:
Fede85 ha scritto:
17/07/21 20:17
... abbiamo un soffitto di 2,80, ma lo ribasseremo di 10 cm per inserire un controsoffitto

Non condivido


Come mai?
e quasi sicuramente la parete dove posizioneremo il televisore...
Che vuol dire? Non manca un verbo? Si deve leggere che quasi sicuramente "eliminerete" la parete? Ma poi il televisore? Boh, non capisco
Non manca nessun verbo, ma effettivamente mi sono spiegato in modo incompleto: la parete che divide la zona del soggiorno da quella della cucina aveva una porta più centrale prima della ristrutturazione. Nel progetto che ho allegato, abbiamo deciso assieme all'architetto di "spostare" la porta verso la parete esterna per ottenere una parete di circa 3,30 per poter inserire un mobile tv.

Ad ogni modo come la arrederesti e con quali mobili? grazie.