Idee per disposizione cucina

#1
Ciao a tutti,
stiamo affrontando una ristrutturazione della casa con annessi interventi di efficientamento energetico, il che comporterà anche lo spostamento della cucina da una stanza ad un'altra.

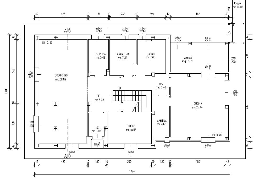
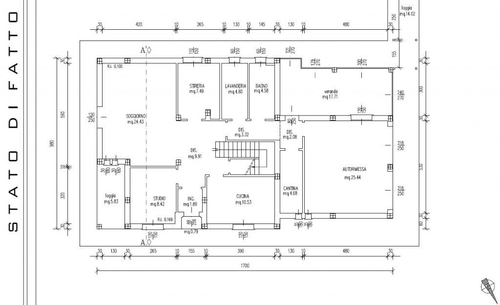
Per rendere l'idea delle modifiche vi metto la piantina dello stato di fatto (cliccando sull'immagine le misure si leggono meglio :wink: )

Immagine


e quella della bozza di progetto, ci sono ancora alcune cose che verranno cambiate di cui vi dirò più sotto nel dettaglio

Immagine



Come potete vedere quella che sarà in futuro la cucina è attualmente un autorimessa, quindi diciamo che verrà rifatta completamente.

Attualmente c'è una finestra di 120 cm di larghezza per 150 cm di altezza al posto della quale verrà realizzata una porta finestra con anta/e a battente. Le misure della porta finestra potrebbero essere ridotte in quanto ci hanno detto che un portoncino esterno di quelle misure, considerando che sarà anche la porta di ingresso dal retro, non essendo misure standard costerebbe molto di più.
Per le aperture dei portoni dell'attuale autorimessa una verrebbe murata, mentre l'altra dovrebbe diventare una grande porta finestra di 218 cm di larghezza per 250 cm di altezza con ante scorrevoli.
Inoltre abbiamo ipotizzato anche di realizzare una finestra anche sull'altro muro esterno, la posizione è ancora da definire di preciso ovviamente non si può mettere dove vedete i pilastri.
Ultimo appunto rispetto alla pianta della bozza di progetto: alla fine abbiamo deciso di non realizzare la porta che va in cantina direttamente dalla cucina, ma di lasciare le cose come sono nello stato di fatto.

Veniamo a quanto vogliamo che necessariamente ci sia in cucina:
- isola
- piano cottura ad induzione
- colonna forno con forno tradizionale e microonde
- colonna frigo o frigo a libera installazione
- lavastoviglie ad incasso
- lavello con due vasche
- piani di lavoro e pensili vari
- un tavolo per 4 persone eventualmente allungabile
- un mobile o mensola per il televisore
- un termosifone o termoarredo

Innanzitutto dobbiamo decidere la disposizione delle cose, poi passeremo al dettaglio dei materiali, colori, finiture, ecc...

La nostra idea era quella di fare un'isola abbastanza grande sulla quale mettere il piano cottura, una parte di piano di lavoro con anche una parte dove ci si possano mettere degli sgabelli da utilizzare come alternativa al tavolo. Sviluppare in maniera lineare la cucina sulla parete nella quale verrà la finestra e le colonne metterle o nella parte dove attualmente ci sono i portoni oppure sulla parete che confina con la cantina.
Il grosso dubbio è come disporre il tutto al meglio per mettere un tavolo relativamente grande, da almeno 4 persone come vi dicevo, facendo comunque in modo che gli spazi non diventino troppo angusti. Inoltre non sappiamo dove piazzare il mobile o mensola per la televisione.

Grazie a tutti per i consigli e i suggerimenti che vorrete darci :)

Re: Idee per disposizione cucina

#2
la cucina è un po' scomoda con il soggiorno, non trovi?

il tavolo in cucina sarebbe utilizzato anche per gli ospiti?

il discorso della portafinestra a misura è una cavolata: tutti gli infissi esterni sono a misura, non esiste lo standard, non è che vai in un negozio di infissi e trovi il pronto, viene sempre tutto realizzato su ordine. casomai certamente ti costa di più perchè più ampio ma 150 non mi pare nemmeno sta gran larghezza :roll:
che poi, ti fanno quella da 218 (cioè 218 ti pare una misura standard???? :mrgreen:) e ti fanno problemi per una da 150? mah...
diverso il discorso se invece è un condominio e allora a capitolato hanno finestre e portefinestre ordinate tutte in serie..

domanda: quella che è segnata come cantina sarebbe una sorta di dispensa dove poter tenere acqua, vini, frutta e verdura, etc.?

per poter disegnare la pianta della cucina, servirebbero anche le misure parziali: posizione di portefinestre e porte, muro cantina, etc.

Re: Idee per disposizione cucina

#3
Ammetto che l'appunto sulla distanza fra cucina e soggiorno non sei il primo a farlo, anche se personalmente non ci vedo tutta questa scomodità. L'alternativa sarebbe quella di fare un open space con cucina e soggiorno, ma i pilastri che ci sarebbero in mezzo la rendono un po' scomoda ed inoltre la parte dell'attuale autorimessa se venisse recuperata in altri modi (es. tavernetta) mi sembrerebbe un po' sprecata. Si accettano comunque suggerimenti anche in merito alla disposizione del progetto anche se penso non sarebbe la sezione adatta.

Sull'utilizzo del tavolo in cucina anche in caso di ospiti dipende dal numero di ospiti, mi piacerebbe un tavolo dove si sta in 4 comodi (nella cucina attuale abbiamo un tavolo da 120x70 e siamo spesso stretti anche in 3) e magari ci si sta anche fino a 6, eventuale soluzione allargabile, anche se il vero tavolo per pranzi/cene con ospiti lo vorrei mettere ovviamente in soggiorno.

Per la porta finestra quello che ci hanno detto è che uno scuro esterno con serratura apribile anche dall'esterno a 2 ante è poco sicuro e fare un portoncino blindato di quelle dimensioni era fuori standard e quindi costava tanto, poi se mi confermi che è una cavolata ne sono ben felice :mrgreen:
l'altra porta finestra avrebbe la chiusura sia dello scuro che dell'infisso solamente dall'interno.

Per la cantina sarebbe esattamente quello che hai detto, quasi sicuramente freezer grande, dispensa per scorte varie, ecc. Quell'ambiente non sarebbe riscaldato.

Hai ragione avevo dimenticato le misure parziali, ve le metto in senso orario a partire dalla porta che dà sul disimpegno:
- tra la porta che viene dal disimpegno e il muro esterno che confina con la veranda ci sono circa 50 cm
- tra quell'angolo e l'attuale finestra/futura porta finestra ci sono circa 262 cm
- tra la finestra e l'altro angolo circa 85 cm
- tra l'angolo e la porta finestra/portone 30 cm
- tra la porta finestra e l'altro angolo ci sono 290 cm
- il muro esterno sono quei 480 cm indicati nelle piante, come vi dicevo dove sarà di preciso la finestra non è ancora definito, l'unico vincolo sono i pilastri
- tra l'angolo e la porta che dà sul disimpegno ci sono circa 400 cm

Re: Idee per disposizione cucina

#4
continuo a pensare che sia molto brutto che per andare in cucina si debba fare kilometri e soprattutto passare davanti a tutti questi locali di servizio...

in ogni caso, prima cosa che mi è venuta in mente:
Immagine
Immagine
Immagine

ho allungato e stretto la finestra che trovo molto più carino farla particolare rispetto ad una dimensione classica tipo:
Immagine
Immagine
Immagine
Immagine
Immagine
Immagine
c'era un'utente che aveva realizzato una splendida cucina con questo tipo di finestra... si chiamava Stella-qualcosa se non erro, vediamo se qualcuno si ricorda e ti mette il link. può esserti di grande ispirazione.


non farei pensili visto che di contenimento ne hai in abbondanza..

Re: Idee per disposizione cucina

#6
Grazie mille di queste prime idee :) soprattutto quella della finestra, ha sicuramente il suo perchè :!:

ti chiedo solamente alcuni chiarimenti:
- qual è la distanza fra la porta finestra di 120 cm di larghezza e il tavolo?
- le basi della parete con la finestra sono 120-60-120-60-90?

Per i pensili vediamo, nelle foto che hai messo mi piacciono molto le soluzioni con i pensili sopra alla finestra :mrgreen: magari togliendo una delle colonne per non appesantire troppo l'ambiente.

grazie ancora :wink:

Re: Idee per disposizione cucina

#7
Macco ha scritto:
ti chiedo solamente alcuni chiarimenti:
- qual è la distanza fra la porta finestra di 120 cm di larghezza e il tavolo?
- le basi della parete con la finestra sono 120-60-120-60-90?
risposte:

- tra l'isola e la portafinestra ci sono 3 mt. considerando un tavolo generalmente largo 80/90 cm, hai piu di 1 mt tra isola e tavolo e tra tavolo e portafinestra. se non ti interessa il piano snack che personalmente trovo rindondante con il tavolo subito accanto in una cucina (fosse stato ambiente unico sala+cucina era diverso), potresti anche far partire il tavolo dall'isola in modo perpendicolare oppure anche parallelamente all'isola in modo che il tutto risulti un tutt'uno. potrebbe venire una cosa molto più accattivante secondo me. esempi:
Immagine
Immagine
Immagine
Immagine
Immagine
Immagine

questa immagine sembra più o meno il mio progetto:
Immagine

oppure potresti eliminare il piano snack e fare un'isola piena + tavolo, come questa:
Immagine

o, ancora un'alternativa, ridurre la zona con la finestra e fare una penisola:
Immagine

- le basi sono, partendo da sin, 90-60-120-60-90. ma puoi davvero modulare in mille modi, secondo gusti e necessità. io, data la mia mania per la simmetria, ho cercato di centrare piano cottura e lavello retrostante :D

l'isola invece è 240 con cassettoni centrali da 120 + modulo ai lati da 60. anche qui però puoi vedere di fare altre modularità, gioco ne hai.

Re: Idee per disposizione cucina

#8
Rieccomi qua :)

abbiamo provato, grazie ai vostri suggerimenti, ad elaborare alcune ipotesi di disposizione della cucina. Ve le posto qui sotto, se avete opinioni, consigli, suggerimenti sulla disposizione e come eventualmente si potrebbe migliorarla, non esitate ad esprimervi :wink:

Se qualcosa non è chiaro chiedete pure :!:

La prima è quella suggerita da Bayeen inizialmente, ho solo messo un po' giù le misure :wink:

Immagine


Variazione sul tema con tavolo attaccato alla penisola, sempre made in Bayeen :roll:

Immagine


Prima opzione con penisola

Immagine


Seconda opzione con penisola

Immagine

Re: Idee per disposizione cucina

#10
bayeen ha scritto:non mi convince il tavolo, sembra un elemento alieno... :mrgreen:
non so poi quanto tu abbia lasciato ma mi sembrano spazi risicati, un peccato in questa ampia cucina.
sono un po' anche i miei dubbi :oops: ti riferisci ad una delle disposizioni in particolare o in generale a tutte? Quali sono gli spazi che sembrano essere risicati?

bayeen ha scritto:e provare a percorrere questa idea di disposizione:
Immagine
???
questa disposizione non è simile a quella dell'ultima opzione che ho messo? :? perchè altrimenti non capisco cosa intendi...

ah poi volevo chiedere una cosa: quale potrebbe essere un programma di uso relativamente facile da sfruttare per fare disegni/rendering onde evitare di farli a mano su un foglio? :mrgreen: diciamo che ha il suo perchè, ma modificare qualcosa o tornare a quella precedente è un po' complicato :P

Re: Idee per disposizione cucina

#13
Volevo chiedervi una cosa forse abbastanza banale :oops: : per l'altezza dei mobili della cucina, intendo quelli che vanno sotto al piano di lavoro, ci sono delle altezze standard dalle quali non si può prescindere? Se si quali sono?

grazie

Re: Idee per disposizione cucina

#14
Alla fine dopo un po' di giri ci hanno proposto una disposizione come quella nell'immagine qui sotto che ci piace molto :D abbiamo ripreso l'idea della finestra tra la base e i pensili che ci ha subito colpito.
Immagine
ci sono ancora un paio di cambiamenti da fare oltre ad aggiungere sgabelli e sedie...

che ne pensate di questa diposizione?

Re: Idee per disposizione cucina

#15
in generale mi piace!
Nn capisco il doppio lavello, ma magari c'è scitto e io.... :oops: ho guardato solo l'immagine! :mrgreen:

poi mi piacciono le stampe e le mensoline nell'angolo. Ma..... Bo... Preferirei colonne fino in fondo, dispensa da 60 (o angolare da 120) e togliere quelle colonnine dispensa da 30!!!!

Ma quanto è grande l'isola????