
Salve a tutti. Sono nuovo del forum e ho appena acquistato un appartamento piccolo. Ora dovrei arredare questa stanza con cucina sala e zona pranzo ma le misure sono proibitive.
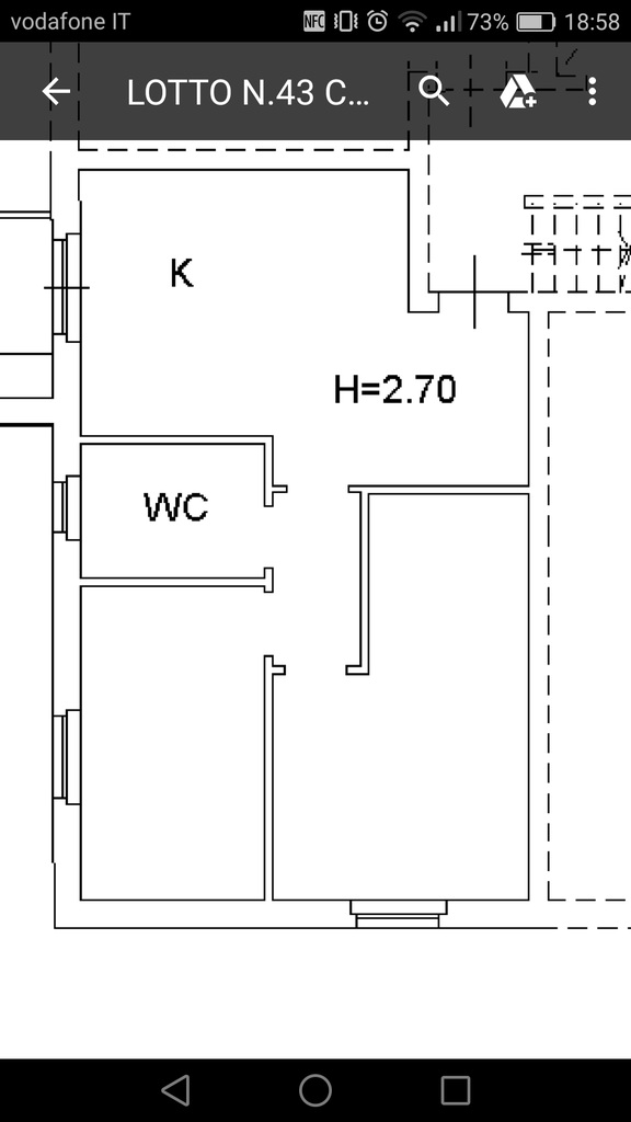
Considerate che gli attacchi dell'acqua verranno fatti sulla parete da 414. Il problema maggiore di questa stanza è l'ingresso esagerato e difficilmente sfruttabile a mio avviso.
Scusate la qualità del disegno ma ho il pc fuori uso. Dimenticavo: ho un termosifone sulla parete da 105 e uno piccolo al centro della parete da 219
