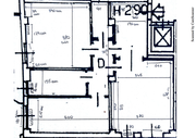
La scelta ovviamente è personalissima e non banale: per il nostro budget dobbiamo scendere a qualche compromesso, soprattutto dato che cerchiamo in una grande città dove i mq sono piuttosto cari. Questa premessa per sottoporre alle vostre idee, se sarete così gentili, un appartamentino di ca 75mq, anni '60, mai ristrutturato. A noi piacerebbe tirar fuori da questo piccolo spazio addirittura un bilocale, con due bagni (di cui uno anche molto piccolo, anche solo ad uso della matrimoniale) e camera singola. La bellezza dell'appartamento, oltre alla zona, è un grandissimo terrazzo, quasi completamente scoperto, che gli si sviluppa davanti e arriva fino alla strada (isolando l'appartamento, che si trova al primo piano, dai rumori). Il terrazzo espone ad est, con due finestre dalla sala, cucina, bagno e camera attuali a sud, su un bel giardino con alberi alti che dovrebbero schermare il calore. C'è una grande cantina. L'idea è di ristrutturare completamente, anche gli impianti (è ora) e di riarrangiare la distribuzione nel modo che più ci aggrada (sono portanti solo i pilastri, come riportati da catasto, anche se visitando la casa a me quello più centrale sembra molto più piccolo di un 40x40cm). L'altro vincolo credo sia la fecale, che dovrebbe essere una sola tra le due finestre in basso a sx (cucina e bagno). Ovviamente rinuncerei alla cucina separata. Che ne dite? si può fare? ci si può vivere per un 12/15 anni (ora in due, un domani... 4?)? Avere un bello spazio aperto compensa un po' i bimbi da una cameretta piccola? Tenuto conto che un quadrilocale sarebbe difficilmente in budget.
Cartina non quotata:

Cartina quotata (il meglio possibile) da me:





