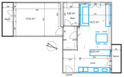
dovrei ristrutturare un appartamento che presenta la seguente planimetria.
Il balcone in alto a sinistra e la finestra in alto a destra hanno dei begli affacci e sono esposti rispettivamente a sud e ovest. Il balcone dell'attuale cucina invece è esposto a nord, con un affaccio interno. Il muro sinistro del bagno è portante.

L'esigenza sarebbe quella di creare un open space, e l'ideale sarebbe farlo sfruttando il balcone con l'affaccio esterno. Tuttavia, vista anche la presenza del muro portante, non vedo nessuna soluzione fattibile in questo senso. La soluzione di ripiego, più semplice, è invece quella di unire la cucina con la stanza adiacente, ed aggiungere un disimpegno davanti al bagno (per evitare che sia direttamente comunicante con il living). A questo punto io ho identificato 2 possibili soluzioni per disporre la zona giorno
[considerate che la casa è vissuta da single, e raramente ho ospiti. Ho escluso inoltre cucine con isole/penisole perchè semplicemente mi sembra non ci sia abbastanza spazio, e poi anche se sono indubbiamente belle, per quanto cucino io sarebbero anche eccessive]
Soluzione 1




Vantaggi: finestra libera ed accessibile, balcone vicino alla cucina. Inoltre la zona living avrebbe l'esposizione ad ovest mentre la cucina quella a nord.
Svantaggi: il muretto con la vetrata che mi servono per fare l'angolo della cucina (penso che senza se la cucina fosse lineare avrei troppo poco piano d'appoggio) tolgono spazio.
Soluzione 2



Variante con vetrata scorrevole in cucina (forse più bella che pratica):

Vantaggi: zona living più spaziosa e con accesso al balcone, zona cucina delimitata
Svantaggi: esposizione "invertita" rispetto alla desiderata. La finestra di fatto sarebbe così non sfruttabile (non ci si può affacciare, per dire). Necessari complessivamente più metri quadri di cucina.
Io sono più favorevole alla soluzione 1, principalmente perchè non mi va di "bruciarmi" una finestra sopra la cucina. Mi date un vostro parere? Vedete soluzioni alternative?











