Buongiorno! Io e la mia compagna abbiamo appena comprato casa e stiamo riflettendo sulla zona giorno. Ci siamo già fatti qualche idea iniziale, ma abbiamo un po' di dubbi sulla funzionalità degli spazi e le possibilità di arredo.
Allego planimetrie e render "artigianali" e una presentazione delle 3 soluzioni. Al centro della stanza c'è un pilastro portante (che vorremmo fare effetto "cemento") e stiamo pensando ad una parete vetrata che separa studio e salotto (dubbio se farla partire da terra o a una altezza da capire).
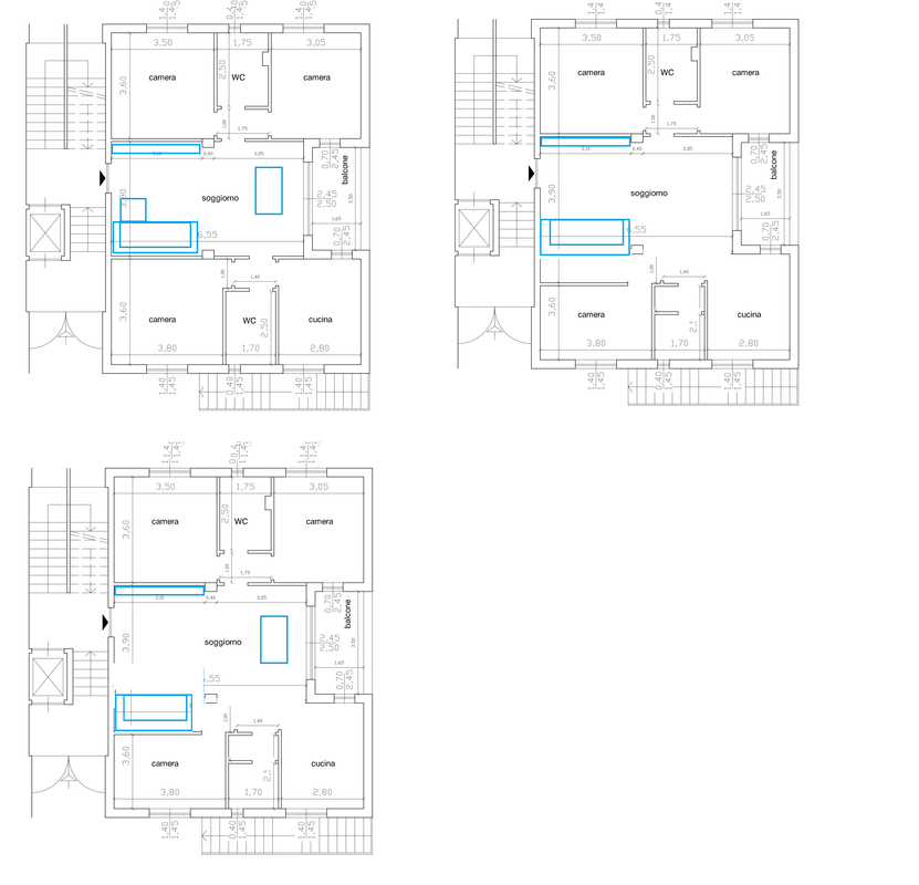
Planimetrie parziali: https://ibb.co/r3LzGSL
Render parziali: https://ibb.co/dm9ZpJR
Planimetria casa: https://ibb.co/p2r1V4t
Che ne dite? A noi piacciono soprattutto gli ultimi due, ma abbiamo dubbi sulla comodità, la vivibilità e la versatilità degli spazi. Apriamo la discussione per ricevere idee, spunti, consigli, critiche e suggerimenti e uscire dallo "stallo"!
Grazie!
Re: Progettazione zona giorno - consigli
#2Boh, non si capisce. Mancano le misure, dunque manca il minimo sindacale.
Ps: come non detto, finalmente ho visto la planimetria.
Ps: come non detto, finalmente ho visto la planimetria.
Sei incorreggibile. Sallo.
Re: Progettazione zona giorno - consigli
#3immagino che in tutte le soluzioni sia previsto il divano come nel progetto originale.
quella intermedia trovo che non abbia senso, poichè diminuisce la dimensione della parete utile per il divano.
nella prima trovo ingombrante il muretto accanto al divano, togliendolo e facendo la penisola a sx si avrebbe più spazio per il passaggio
nella terza invece ci sono due possibilità con il divano:
-appoggiato alla parete (di qualunque materiale vogliate farla), ma la distanza diventa eccessiva per la tv.
- alla stessa distanza della soluzione 1 lasciando della distanza tra schienale e parete vetrata;
non sono certa che visivamente possa avere senso
forse però dall'ingresso si ha la vista fino in fondo alla cucina e sembra tutto più ampio.
altre idee non mi vengono.

quella intermedia trovo che non abbia senso, poichè diminuisce la dimensione della parete utile per il divano.
nella prima trovo ingombrante il muretto accanto al divano, togliendolo e facendo la penisola a sx si avrebbe più spazio per il passaggio
nella terza invece ci sono due possibilità con il divano:
-appoggiato alla parete (di qualunque materiale vogliate farla), ma la distanza diventa eccessiva per la tv.
- alla stessa distanza della soluzione 1 lasciando della distanza tra schienale e parete vetrata;
non sono certa che visivamente possa avere senso
forse però dall'ingresso si ha la vista fino in fondo alla cucina e sembra tutto più ampio.
altre idee non mi vengono.

Re: Progettazione zona giorno - consigli
#4Grazie mille Gina!
Concordiamo sulla rimozione del muretto/mobiletto della soluzione 1.
Guarda il dubbio sulla 3 è proprio la disposizione del divano: abbiamo provato a metterlo anche contro la parete di ingresso, che guarda quindi la zona pranzo, ma poi dovremmo pensare a una soluzione per ospitare la tv (che non deve essere protagonista) partendo dal pilastro.
O ancora si potrebbe pensare a due divani più piccoli disposti a L con la tv sulla parete d'ingresso, con il limite che il divano frontale alla tv darebbe le spalle alla zona pranzo.
Grazie!
Concordiamo sulla rimozione del muretto/mobiletto della soluzione 1.
Guarda il dubbio sulla 3 è proprio la disposizione del divano: abbiamo provato a metterlo anche contro la parete di ingresso, che guarda quindi la zona pranzo, ma poi dovremmo pensare a una soluzione per ospitare la tv (che non deve essere protagonista) partendo dal pilastro.
O ancora si potrebbe pensare a due divani più piccoli disposti a L con la tv sulla parete d'ingresso, con il limite che il divano frontale alla tv darebbe le spalle alla zona pranzo.
Grazie!
Re: Progettazione zona giorno - consigli
#5nel primo caso la tv sarebbe proprio la prima cosa che si vede entrando, nel secondo invece...proprio brutto...andreacactus ha scritto: ↑11/03/21 15:50
Guarda il dubbio sulla 3 è proprio la disposizione del divano: abbiamo provato a metterlo anche contro la parete di ingresso, che guarda quindi la zona pranzo, ma poi dovremmo pensare a una soluzione per ospitare la tv (che non deve essere protagonista) partendo dal pilastro.
O ancora si potrebbe pensare a due divani più piccoli disposti a L con la tv sulla parete d'ingresso, con il limite che il divano frontale alla tv darebbe le spalle alla zona pranzo.
Grazie!
Re: Progettazione zona giorno - consigli
#6cominciamo col dire che il progetto è assai scarsino quanto a creatività....
ha disegnato mezza casa, poi col comando "Specchia" ha fatto l'altra metà.....
Beh, sapete come siamo lingue lunghe noi progettisti.....
siamo a piano terra....
com'è l'orientamento?
lo studio dev'essere accessibile anche a clienti oppure è solo vostro?
ha disegnato mezza casa, poi col comando "Specchia" ha fatto l'altra metà.....
Beh, sapete come siamo lingue lunghe noi progettisti.....
siamo a piano terra....
com'è l'orientamento?
lo studio dev'essere accessibile anche a clienti oppure è solo vostro?
Re: Progettazione zona giorno - consigli
#7Concordo sulla poca creatività, ma ce la siamo trovata così, con i pro e contro. Diciamo che la volontà di cambiare un po' gli spazi nasce anche per rompere questa simmetria.Olabarch ha scritto: ↑11/03/21 19:23cominciamo col dire che il progetto è assai scarsino quanto a creatività....
ha disegnato mezza casa, poi col comando "Specchia" ha fatto l'altra metà.....
Beh, sapete come siamo lingue lunghe noi progettisti.....![]()
siamo a piano terra....
com'è l'orientamento?
lo studio dev'essere accessibile anche a clienti oppure è solo vostro?
Siamo a piano rialzato, orientamento Est (le due camere) Sud (porta finestra sala) Ovest (cucina e studio). Lo studio è solo nostro, non deve ospitare clienti.
Re: Progettazione zona giorno - consigli
#9Sono 4 piani per un totale se non vado errato di 16 unità abitative.
Re: Progettazione zona giorno - consigli
#10mi chiedo come mai niente finestre nelle camere lato sud....... 