• Community
  • Outlet
  • Negozi
Outlet Arredamento
    • Community
    • Outlet
    • Negozi
  • Cucine
    Indietro

    Accessori per Cucine

    Piastrelle CucinaUtensili CucinaLavello e Rubinetto CucinaTop CucinaConsigli Cucine

    Elettrodomestici

    Cappa CucinaPiano CotturaForni da IncassoFrigoriferiLavastoviglie

    Stili di Cucine

    Cucine ModerneCucine in MuraturaCucine DesignCucine Classiche

    Piccoli Elettrodomestici

    Robot da CucinaMacchina Caffè
  • Soggiorni e Divani
    Indietro

    Zona Giorno

    Mobili SoggiornoLibrerieMobili Ingresso

    Salotti

    Divani ModerniDivani ClassiciDivano Letto

    Tavoli e Sedie

    TavoliSedieScrivanie

    Imbottiti

    PoufPoltroneCuscini
  • Arredo Bagno
    Indietro

    Arredo Bagno

    Mobili BagnoVasca da BagnoSauna e Bagno TurcoSanitari BagnoBox DocciaRubinetteria Bagno

    Ristrutturare il bagno

    Ristrutturazione BagnoBagni ModerniPiastrelle e Rivestimento BagnoAccessori Bagno
  • Camere e Armadi
    Indietro

    Zona Notte

    Camere da LettoLettiCameretteMaterassi

    Mobili contenitori

    ArmadiCabina armadioComodini Cassettiere
  • Arredare Casa
    Indietro

    Lifestyle

    Addobbi NataliziIdee RegaloCome Arredare CasaTelevisioni ed Impianti Hi FiProgettare Casa

    Decorazioni per Interni

    TappetiTendeBiancheria per la casaQuadri e corniciAdesivi muraliSpecchi

    Magazine Arredamento

    Eventi e FierePulire CasaBricolage Fai Da TeNegozi di ArredamentoArtigianato
  • Ristrutturare Casa
    Indietro

    Porte e Infissi

    Porte InternePorte Blindate e Portoni GaragePorte a SoffiettoPorte ScorrevoliFinestreTapparelle e Persiane

    Rivestimenti

    Pavimenti in CeramicaPavimenti ResinaPavimenti in ParquetCarta da ParatiConsigli RivestimentiPavimenti in GresRivestimenti in Pietra

    Ristrutturazione casa

    Scale InterneAscensoriCase PrefabbricateRistrutturare CasaImpianti CasaMateriali EdiliNormative Casa

    Riscaldamento e Climatizzazione

    Climatizzatori e DeumidificatoriCaminiStufeTermosifoniCaldaieRiscaldamento a Pavimento

    Illuminazione

    Lampade da TerraLampade da TavoloLampadariFarettiApplique e Lampade da ParetePlafoniere
  • Arredo Giardino
    Indietro

    Arredi da Giardino

    Tavoli da giardinoTende Da SoleGazeboPergole e PompeianeVerandeLettini e Salotti da giardino

    Outdoor

    Pavimenti per EsterniPiscinePiante da giardinoGiardinaggioBarbecue
  • Top Brand
  • Login
    • Argomenti senza risposta
    • Argomenti attivi
  1. Indice
  2. Arredamento Casa - consigli per arredare casa
  3. Zona giorno e progettazione

Consiglio arredo zona giorno

Moderatore: Steve1973

  • Stampa pagina
Rispondi
  1. Indice
  2. Arredamento Casa - consigli per arredare casa
  3. Zona giorno e progettazione
1 messaggio
fdepalma
fdepalma
Messaggi:
12
Iscritto il:
08/09/20 20:35

Consiglio arredo zona giorno

#1 da fdepalma
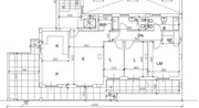
Buongiorno a tutti. Stiamo valutando acquisto di un appartamento di nuova costruzione. Come distribuireste gli arredi della zona giorno? Vorremmo creare un open space e potremmo anche spostare la cucina su un'altra parete, perché è ancora in fase di costruzione.
Vi posto planimetria.
Grazie!!!
Immagine
  • Cita
  • 08/04/21 10:19
1 messaggio
Rispondi

Torna a “Zona giorno e progettazione”

Vai a
  • Arredamento Casa - consigli per arredare casa
  • -     Cucine
  • -     Elettrodomestici
  • -     Zona giorno e progettazione
  • -     Divani e divani letto per arredare la casa
  • -     Camera da letto
  • -     Armadi
  • -     Materassi
  • -     Camerette & Prima Infanzia
  • -     Arredamento Bagno
  • -     Complementi & Accessori d'arredo
  • -     Giardino
  • -     Arredamento Ufficio & Studio
  • Edilizia ed Impiantistica
  • -     Climatizzazione e Riscaldamento
  • -     Illuminazione
  • -     Pavimenti e rivestimenti
  • -     Serramenti, Porte e Scale
  • -     Lavori Edili
  • Vario
  • -     Galleria fotografica
  • -     Consigli & Rimedi
  • -     Software progettazione d'interni
  • -     Prestiti, Mutui, Fiscalità e Finanziamenti
  • -     Radio Truciolo
  • -     Arte e dintorni
  • -     Movida
  • -     Off Topics
  • Forum
  • -     Suggerimenti per il forum
  • -     Sondaggi
Hörmann - Vivi la tua casa con più sicurezza

Hörmann - Vivi la tua casa con più sicurezza!

Best Mitchcactus Alternatives…
When it comes to purchasing in-game items, currency, or services, many players turn to trusted online platforms to get t
Titan95, 14/01/26 4:43
Re: Pulizia gres dopo pittura
Ciao! Dopo pittura e stucco è normale che restino residui che opacizzano il gres e schiariscono le fughe. In questi casi
Emilceramica Group, 13/01/26 17:43
Re: Disposizione rivestimenti…
Buongiorno, l’impostazione è già buona e, se stai valutando anche il materiale, il gres porcellanato può essere la soluz
Emilceramica Group, 13/01/26 17:41
Tetto in legno o cemento
Ciao, stavo pensando per guadagnare spazio in altezza ad un tetto in legno a due falde. Rischio tarli o altro? Costi? In
Luca333, 08/01/26 13:25

  • Cucine
  • Soggiorni e Divani
  • Arredo Bagno
  • Camere e Armadi
  • Arredare Casa
  • Edilizia Casa
  • Arredo Giardino
  • Contatti
  • Iscriviti alla Newsletter

© Prelude Advertising Srl a socio unico - P.Iva 03490440264 Iscrizione REA TV 276625 - Capitale sociale 30.000 euro i.v.
Iscrizione ROC NR. 31054 del 15/10/2010 - Quotidiano on line iscritto al nr. 159/2010 del registro stampa del Tribunale di Treviso

Login