Essendo il mio primo post, mi presento: sono Alessandro, ho 32 anni e abito in provincia di Varese, finalmente a Dicembre, insieme alla mia compagna, abbiamo finalizzato il nostro primo grande passo, comprare casa.
La casa in questione è un quadrilocale di circa 100 mq al piano rialzato di un immobile degli anni 70, attualmente occupato da una famiglia a cui subentreremo a Giugno.
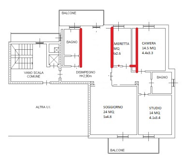
Questa la piantina attuale delle murature, nelle quali ho inserito i metri quadri per stanza e le misure (che potrebbero variare di qualche cm). Al momento siamo in due, la cameretta sarebbe quindi un ulteriore spazio hobby/palestra e lo studio sarebbe destinato allo Smart Working della mia compagna.

Il pavimento ad eccezione dei bagni è interamente in parquet, in ottimo stato ma che faremo comunque lamare prima di entrare a viverla.
Siamo aperti all'idea di poter ristrutturare parzialmente la casa, per renderla più moderna, proprio a questo proposito sorge la prima domanda.
Per noi, la cucina è uno dei luoghi più importanti della casa e che vorremmo comunque tenere separata per limitare gli odori, ma avrebbe senso (se fattibile) invertire la cucina con lo studio? Oltre ad avere un locale più spazioso, sarebbe pure comunicante con il soggiorno (sala da pranzo) e se facessimo un'apertura tra questi, magari con delle belle porte vetrate aumenterebbe la luminosità delle due stanze.
Se voi foste al nostro posto, capisco ognuno abbia le sue esigenze, come andreste a modificare questa planimetria?
Spero di aver inserito il thread nella sezione corretta, vi ringraziamo a tutti per ogni spunto che ci darete.
