Arredamento zona giorno appartamento al mare

#1
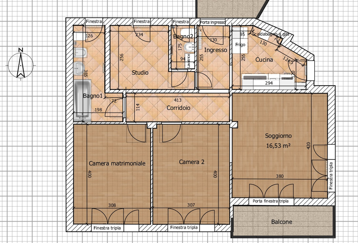
Buongiorno a tutti, sono in procinto di acquistare un appartamento al mare al secondo e ultimo piano, che si presenta già in buone condizioni abitative e per il momento non intenderei apportare modifiche alla struttura. Avendo superato il budget previsto per l'acquisto, non posso permettermi l'aiuto di un professionista del settore. Mi rivolgo a voi chiedendo suggerimenti per definire la disposizione degli arredi del Soggiorno e Camera2 (comunicanti tramite un varco senza porta nel muro di confine che vorrei mantenere) e come integrare l'arredo già presente in Cucina (da mantenere, praticamente nuovo). Quello che in pianta è indicato come studio al momento verrà probabilmente utilizzato come ripostiglio.
Di seguito le mie esigenze specifiche:
Soggiorno: mantenere il varco di comunicazione tra Soggiorno e Camera2, inserire mobile porta TV + mobile contenitivo + divano letto (matrimoniale) con penisola
Camera 2: inserire tavolo da pranzo (trasformabile da 6 a 10 posti) e sedie, mobile contenitivo, letto a scomparsa (matrimoniale) e scrivania/angolo studio; valuto la possibilità di eliminare la porta sul corridoio.
Cucina: inserire tavolo per 2 persone (anche a ribalta) e ulteriori mobiletti contenitivi (anche a profondità ridotta).
Ringrazio in anticipo chi mi vorrà aiutare!
Immagine

Immagine