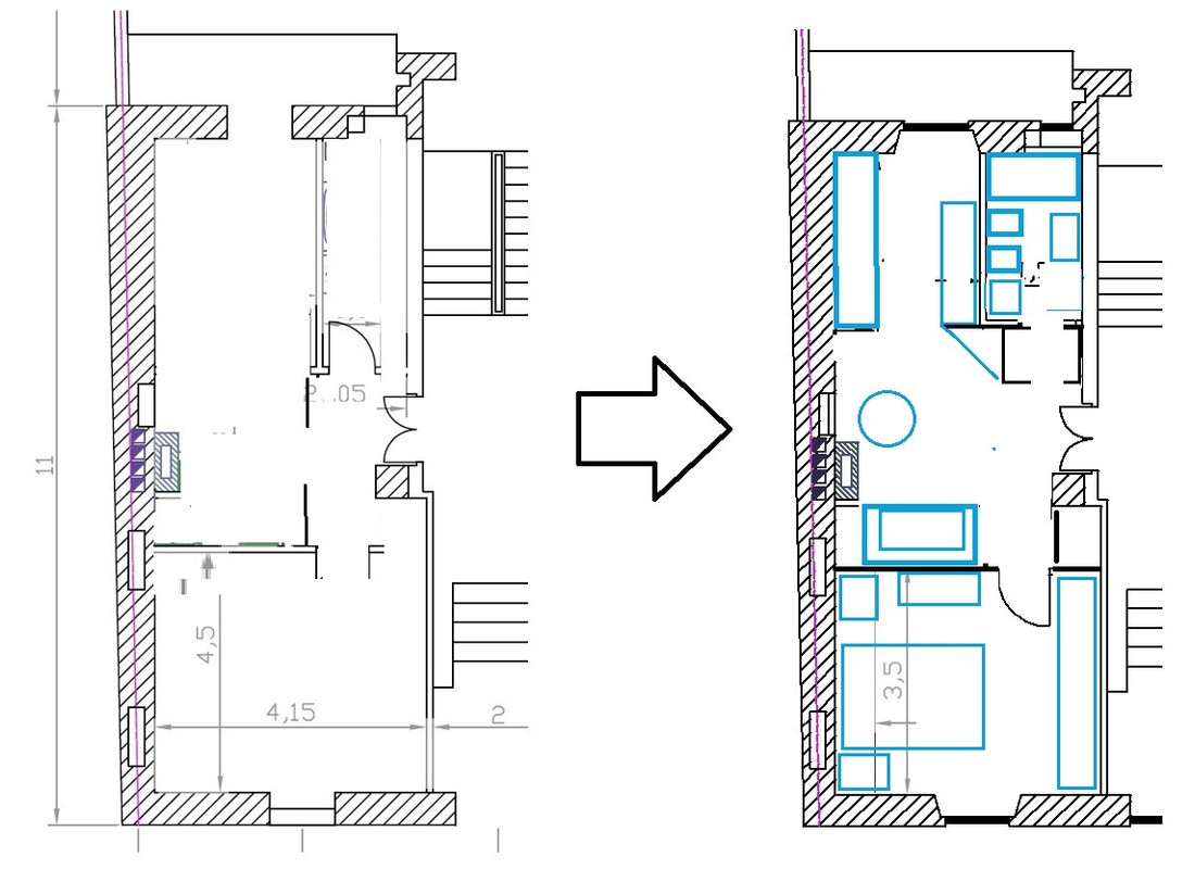
devo ristrutturare un piccolo appartamento bilocale e dovendo rispettare le vigenti regole edilizie sulle dimensioni minime del bagno mi troverei ad avere una cucina stretta e lunga.
Chiedo un parere se secondo voi una cucina di queste dimensioni (2,25x5,4) risulti essere ancora una "cucina vivibile".
Esistono dei trucchi per camuffare la percezione di stretto (come ad esempio disposizione delle piastrelle del pavimento o colori delle pareti)?
Grazie molte per i consigli.
Fabio

