Breve riassunto per chi non mi conosce: nella primavera 2010 abbiamo comprato e ristrutturato un appartamento a Torino (di cui ci sono ancora le immagini in Galleria), tra l'altro con grossa mano da parte del Forum. Siamo andati a viverci a ottobre dello stesso anno...peccato che a dicembre hanno comunicato a mio marito che l'avrebbero trasferito a Roma!!!! E così a giugno dell'anno scorso abbiamo messo in vendita la casa e ci siamo trasferiti nella Capitale (era un trasferimento fortemente voluto per anni e mai arrivato, x quello avevamo issato bandiera bianca e comprato casa su...ma si sa che la vita ha un tempismo fenomenale
Perfetta soprattutto perchè è stata completamente ristrutturata dagli attuali proprietari 4 anni fa con davvero ottimi materiali (tutto nuovo, anche le finestre), visto che la mia voglia di ricominciare una ristrutturazione rasentava lo zero!
Certo, non tutto è di mio gusto (dopo aver pavimentato tutto in rovere mi ritrovo una casa interamente in wengè...amo le porte bianche e queste sono in legno scuro...ma magari col tempo si potranno sostituire), ma in certi casa si impara a farsi piacere le cose e si cerca il più possibile di personalizzare.
La sfida è dare un'impronta giovane a un appartamento che tutto sommato è giovane come concezione, ma reso molto classico dai gusti dei proprietari.
Sono 135 mq + 40 di soppalco vivibile che si affaccia su sala, cucina e camera delle figlie. Questo perchè i soffitti sono alti 5.10 mt (è un attico).
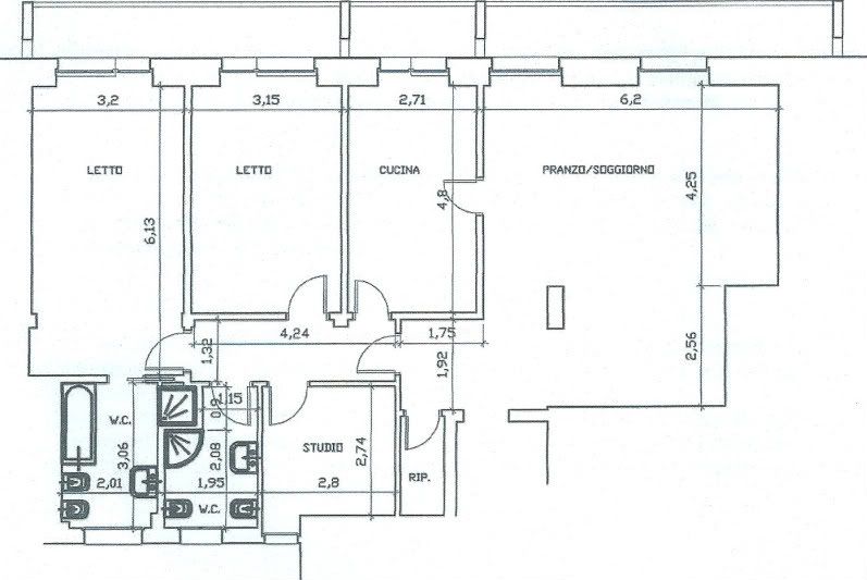
Questa la piantina, sia in planimetria che in 3d (tutti i render sono stati realizzati da Lietta, che ringrazio molto):


Il Tulip verrà spero presto sostituito con un tavolo rettangolare allungabile, ma x ora va piazzato.
La composizione per la tv si può tranquillamente smembrare se necessario, per lo meno le basi (al limite anche eliminabili).
La libreria e la credenza non si possono toccare.
Queste le ipotesi finora immaginate...quella che mi convince di più è quella con la tv sulla parte adiacente alla cucina...ma temo per l'apertura della finestra e che il passaggio alla cucina possa essere di disturbo.
Riuscite a farvi venire in mente altro? La zona pranzo la preferirei sotto il soppalco...
Intanto ecco il soggiorno vuoto:








