Redazione - 27 ottobre 202527 ottobre 2025
Una ristrutturazione all'interno delle mura di Firenze
In un palazzo degli anni trenta vicino a Porta Romana, il varco più a sud di Firenze, un sapiente restyling ha creato ambienti belli da vivere.
Redazione - 27 ottobre 202527 ottobre 2025
La storia di un progetto che soddisfa uno stile di vita
Molti anni fa, una giovane giornalista americana lasciò gli Stati Uniti per trasferirsi in Italia. Il suo obiettivo era chiaro: immergersi nel mondo del cibo e del buon vino del nostro paese.
Oggi, questa professionista è un punto di riferimento nel panorama enogastronomico grazie ai solidi rapporti che ha instaurato con gli operatori del settore, anche oltre i confini della zona dell'Oltrarno.
È proprio nella casa non lontana da Porta Romana che la proprietaria comincia, assieme al marito, un nuovo percorso di vita. Il progetto di ristrutturazione dell’abitazione è stato realizzato dallo Studio di Architettura Benaim. Gli architetti interpretano alla perfezione la grande passione della cliente: cucinare, gustare i piaceri della tavola e trascorrere momenti conviviali con le persone che ama e gli amici che stima.
La luce è protagonista nella dimora storica
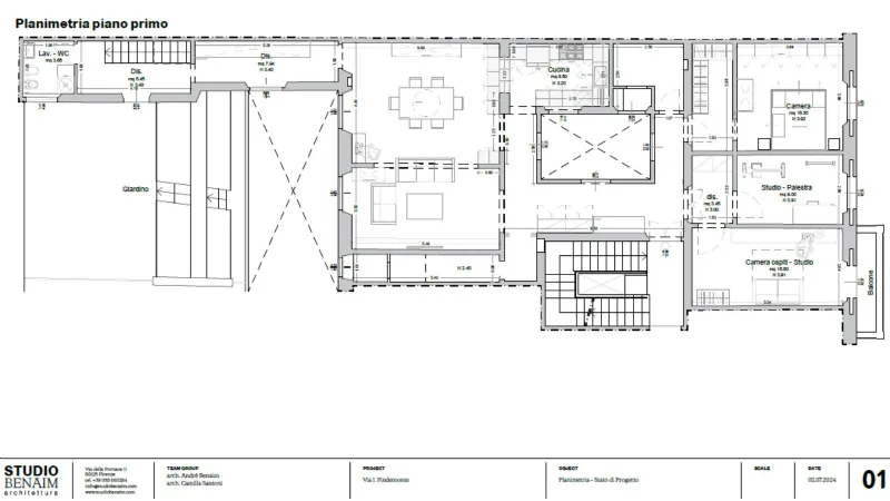
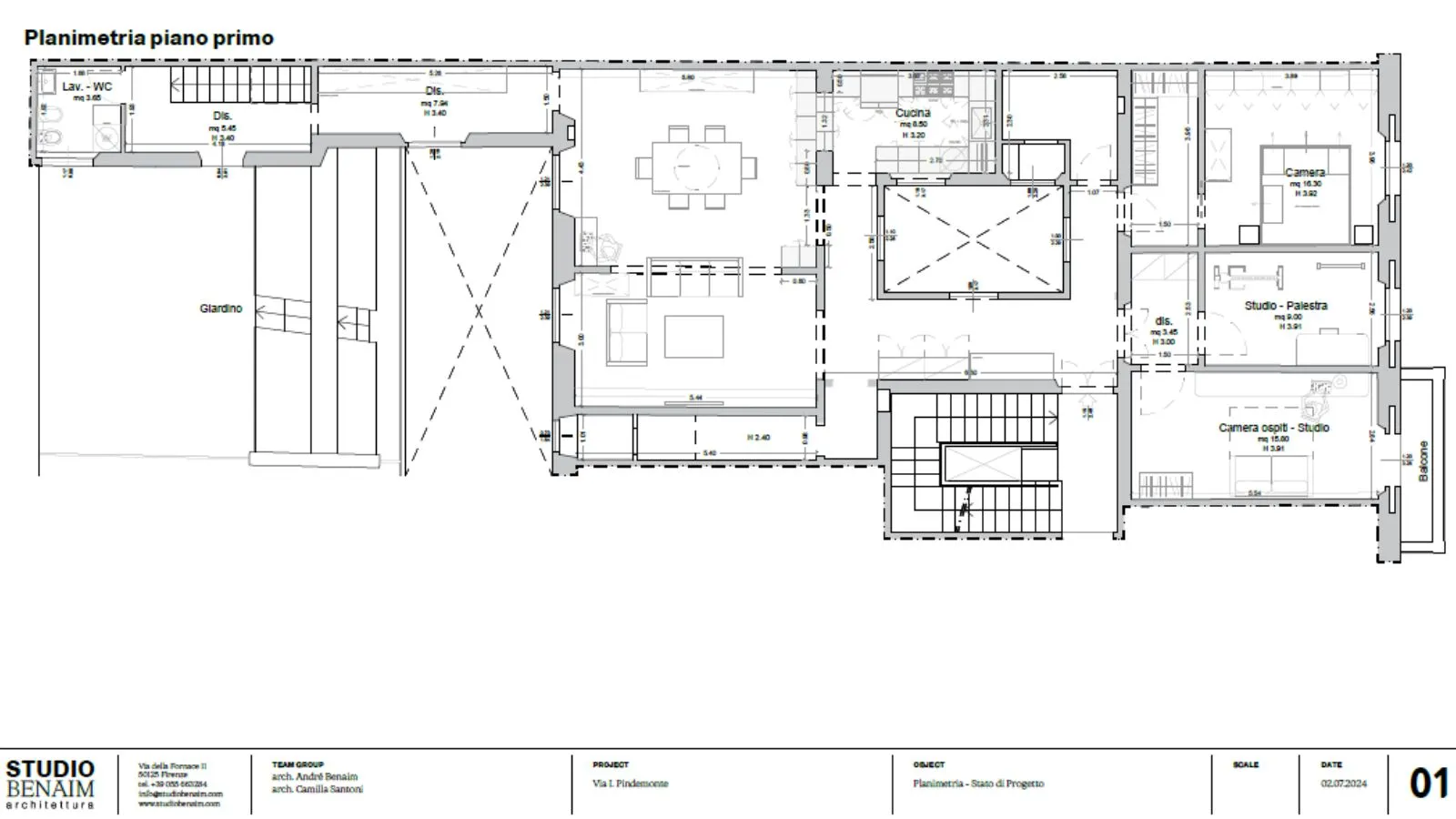
La signora ha scelto come residenza un appartamento costruito nel 1930 nell’Oltrarno fiorentino. Gli ambienti sono stati ripensati per favorire la socialità e massimizzare l'ingresso della luce naturale, a partire dalla zona living.
Le scelte progettuali hanno posto una particolare attenzione al comfort abitativo. La luminosità all'interno delle stanze è stata aumentata grazie alle grandi finestre che affacciano sul giardino.
Gli architetti dello Studio Benaim hanno voluto agevolare i gesti e le abitudini che rendono la casa un luogo autentico, che sa di famiglia.
Un nuovo equilibrio tra spazi e funzioni
Il restyling ha previsto una nuova ridistribuzione degli spazi domestici. La zona notte e gli studi personali dei due coniugi sono stati collocati sul lato della casa che affaccia sulla strada.
Il soggiorno, la sala da pranzo e la cucina si aprono verso il giardino interno. Questa divisione ha reso la casa più funzionale, con una netta distinzione tra la sfera privata e quella conviviale. L'effetto finale regala uno spazio davvero armonioso ed accogliente, ideale per ospitare.
Il giardino, uno spazio difficile da trovare in questo quartiere, ospita un piccolo orto con erbe aromatiche, per ottenere piatti sempre più genuini.
La conservazione dei dettagli che preservano la memoria
In accordo con la cliente, il lavoro ha rispettato pienamente l’identità originaria dell’appartamento. Le porte e gli infissi non sono stati sostituiti, ma restaurati con cura dalla Falegnameria Ferruzzi. Convivono con i pavimenti esistenti in graniglia decorata, che cambiano motivo da una stanza all’altra. Le mattonelle sono state adeguatamente pulite e cerate.
Tutti gli arredi della casa, anche i mobili su misura, sono stati realizzati da Wood Arredamenti, un laboratorio artigianale situato nella provincia di Firenze. Il tutto, completa l’atmosfera domestica mettendo in mostra un perfetto equilibrio tra tradizione e contemporaneità.
La cucina è concepita come luogo centrale di ritrovo
Il fulcro della casa è la cucina, in questo caso uno spazio di poco meno di 10 mq studiato con precisione millimetrica. Ogni mobile al suo interno risponde ad un’esigenza precisa della proprietaria, coniugare estetica e funzionalità.
Lo Studio, guidato dall’architetto André Benaim, ha creato un ambiente ricco di personalità e facile da vivere. Il blocco cottura scelto è il modello ILVE da 90 cm della linea Professional Plus.
Questo elettrodomestico è dotato di due forni, uno da 60 cm e l’altro da 30 cm, e sei fuochi con pratiche griglie in ghisa. La cappa in acciaio inox AISI 304 integra filtri professionali. Questa scelta consente di cucinare in modo pratico per più persone.
Connessione fluida tra cucina e soggiorno
Gli architetti hanno valorizzato ogni centimetro disponibile, collegando direttamente la cucina al living. Alcune delle vecchie pareti sono state demolite per consentire la disposizione del tavolo e del divano. Il risultato si concretizza in due spazi che dialogano in perfetta armonia. Una mensola passante in granito unisce idealmente le due diverse aree funzionali, fungendo da piano d’appoggio e da elemento decorativo.
Anche in cucina le pareti sono bianche, così come le mensole e i pensili, per ampliare visivamente il locale e valorizzare l'ordine. Gli oggetti raccolti nel tempo raccontano la storia di una vita dedicata alla buona tavola. In questo luogo, alla proprietaria piace preparare una ricetta tipica toscana che viene tramandata da generazioni: la fettunta. È una preparazione che utilizza pochi ingredienti ma di buona qualità e parla di giornate trascorse con amicizie sincere.









