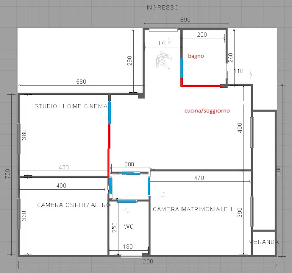
C'è tutto da rifare (impianti, pavimenti ecc...). Vorrei realizzare un secondo bagno, uno studio con home cinema (con proiettore). I pilastri sono quei quadratini un po' più grossi (scusate non sono un tecnico e il disegno è quello che è).
Mi piacerebbe un pavimento in legno: o molto chiaro (quasi bianco) o molto scuro, no vie di mezzo (salvo qualcosa di design tipo legni grigio-viola).
Visto che si parte da zero qualunque suggerimento sarà il benvenuto.
Grazie!!!


