dopo varie ricerche alla fine abbiamo acquistato il nostro secondo appartamento (dopo aver capito che nel primo era impossibile vivere con dei bimbi), dove contiamo di trasferici al piu presto. Stiamo un po modificandolo cambiando i pavimenti e rivestimenti, inserendo l'ac, ecc.
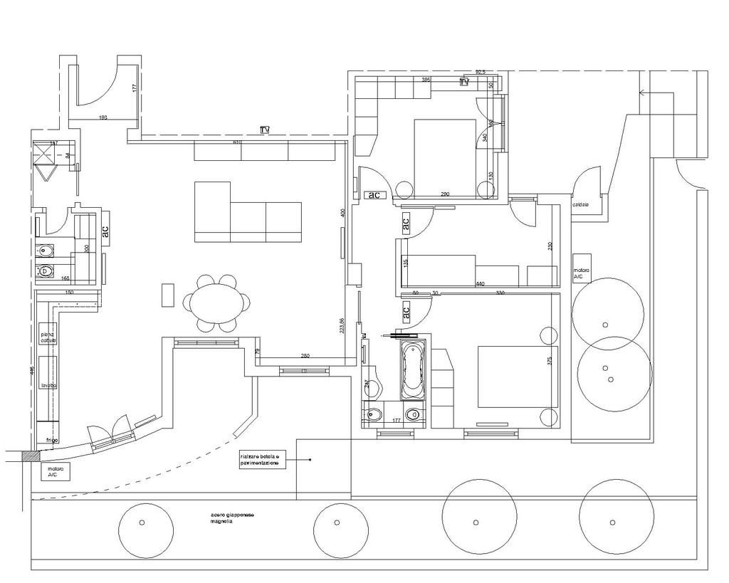
Finalmente abbiamo trovato un appartameto con una zona giorno molto spaziosa, dove i bimbi potranno giocare liberamente e al piano terra con una piccola corte privata.
Vi allego la piantina che piu o meno ci soddisfa, nei limiti del possibile, e vi chiedo consigli... c'è qualcosa che cambiereste? consigli? suggerimenti?

Grazie mille a chi vorra rispondermi