Mi sono appena iscritta, in cerca dei vostri preziosi consigli! Abbiamo appena acquistato la nostra nuova casa, su 2 livelli, che sarà pronta tra circa un anno.
Vorrei tanto una vostra opinione sulla disposizione della zona giorno.
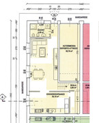
Questa è la pianta originale del piano terra, completa di misure, predisposta dal costruttore:

Così com'è stata disegnata non ci convinceva, io ho sempre sognato una cucina spaziosa, abbiamo quindi proposto di modificare la disposizione in questo modo:

Purtroppo non ho ancora la pianta ri-disegnata vi allego un rendering (molto scarso) che ho abbozzato io.
Sposteremmo la cucina in basso al posto della zona soggiorno, riuscendo a ricavare anche un ripostiglio/dispensa, sulla destra.
Dal rendering non si vede, tra il soggiorno e la cucina metteremmo una porta a scrigno doppia, da chiudere solo al bisogno.
Cosa ne pensate??
Il soggiorno spostato vicino all'ingresso sarà troppo stretto?
Una sola porta-finestra sarà sufficiente a dare abbastanza aria e luce a una cucina di quelle dimensioni?
Grazie in anticipo a chi mi risponderà!
