Leggo questo forum da diversi mesi e ho trovato qui tantissime informazioni utilissimi ed interessanti. Complimenti a tutti voi che contribuite regolarmente e siete di grandissimo aiuto a tutti come me, in cerca di consigli. Mi sono registrata un po' di tempo fa’ perché volevo anch'io chiedervi un po' di aiuto. Da poco abbiamo acquistato la nostra casa in costruzione che sarà pronta più o meno a fine estate. Nei prossimi 2-3 mesi dovremmo ordinare la cucina e quindi dobbiamo decidere su alcune cose dove io ho ancore le idee un po' confuse...
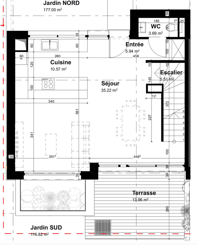
Inizio con la piantina. Il pian terreno è tutto un open space (ahimè non tanto grande) L'impianto elettrico e idraulico è stato già realizzato, e a questo punto non più modificabile (al meno che non paghiamo una penale che sinceramente voremmo evitare).


— Un altro punto di indecisione e la parte sopra la penisola.
L'altro progetto che abbiamo fatto con un rivenditore multi marche per una Key Cucine tutta su misura, prevedeva sul muro sopra la penisola una specie di boiserie in legno fino al soffitto con 3 mensole. Esteticamente bello, come si vedono sui giornali, ma più ci pensavo più non mi entusiasmava l’idea di quella parte giorno in cucina che raccoglie oggetti inutili e polvere… E quindi avevo deciso di chiederli dei pensili/vetrine da 90cm in verto scuro fume e solo alla fine, delle mensole piccole giusto per non far vedere i fianchi dei pensili dalla zona giorno… So che sarà una parte poco comoda da usare, ma lì ci posso mettere tutti i calici/servizi di piatti che si usano un paio di volte al anno… E solo che nel frattempo ho scoperto la Valcucine e non siamo più tornati da lui…
E quindi ho chiesto al rivenditore Valcucine di progettarmi qualcosa di simile, ma lui mi diceva che Valcucine non ha dei pensili con frontale in vetro, quindi mi metteva li un pensile normale. Io avrei anche messo una vetrina di un altra marca, (tipo Euromobil che lui vende), con struttura in metallo brunito e vetro fume, lasciandola un po’ staccata dalle colonne come se fosse “sospesa”, ma secondo lui non è una buona idea...I vostri opinioni?
— l’altro punto di dubbio e la cappa (che può essere solo filtrante).
Originalmente volevo o il PC della Bora con cappa integrata, oppure quello Siemens o Mielle. Poi però ci pensavo Noi cuciniamo abbastanza e di conseguenza sporchiamo abbastanza...i schizzi dietro i fuochi facilmente arrivano fino ai pensili a volte ... ho paura che con il piano cottura sulla penisola, mi arriva tutto sul parquet dal altro lato, quindi ho pensato che sarebbe forse meglio avere una cappa downdraft dietro il PC, cosi che serve anche a proteggere un po'. Consigli?
— Il top??? Gres porcellanato, granito, pietre naturali? Ora abbiamo acciaio e mi trovo benissimo, però nella cucina nuova essendo aperta sul resto non mi piace...volevo qualcosa di più delicato esteticamente, se si può dire così. Con il progetto della Key avevamo scelto Il Laminam, che lui aveva nello showroom su diverse cucine ed il Calacata Gold soft touch ci era piaciuto tanto, anche se alla fine avrei scelto il Noir Desir sempre opaco, un po’ perché mi piace di più, e un po' perché il calcata gold mi sembra troppo abusato in questo momento.... Il rivenditore Valcucine invece lo sconsigliava… Diceva che rischia comunque di spaccarsi e che si può montare solo su top Valcucine e solo di spessore 2cm, ma ugualmente lo sconsigliava, anche perché sarebbe costato molto di più… E qui spero tanto di avere l'opinione di Cla 56, che ringrazio in anticipo se si fermerà al mio post!
Quindi con Valcucine abbiamo scelto un granito nero assoluto come ci aveva suggerito il rivenditore, non ricordo se spazzolato o qualcos’altro, comunque non lucido. Io ho ancora il dubio però, mi piacerebbe forse di più qualcosa tipo Pietra Grey oppure un bel Marmo (che tutti ci sconsigliano). AIUTO!!!! Qui mi sento ancora persa.
Come colori ci piaceva questa combinazione che ho trovato sul sito di Valcucine per la Forma mentis. Angel Skin Grigio (che è molto chiaro), con metallo titanio, ed in questo caso vorrei un top chiaro (e come ci sta da dio quell Carrara lì).
Oppure mantenendo il top nero, fare le basi nere e il resto metallo titanio oppure metallo acciaio...

P.S. Non sono Italiana, mio marito lo è, ed il mio Italiano non è così buono. Per questo mi scuso con tutti voi per i errori che avrò sicuramente fatto. (Lo so che ne faccio tanti
Buona serata a tutti voi,
S


