ho appena comprato casa da ristrutturare quasi completamente. Siamo in due, con il piano di raddopiare (
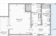
Allego il rilievo della casa allo stato attuale:

I vincoli sono:
- la cucina deve rimanere dove e' attualmente
- ricavare un secondo bagno, vicino a quello esistente in modo da sfruttare gli scarichi
- open space cucina/living
Opzionale:
- studio, che mi servirebbe in quanto generalmente lavoro da casa (facendo le prime simulazioni, difficilmente riuscira' a starci).
Vi giro una delle ipotesi che mi sembra piu' adeguata, considerando che lo studio al momento non lo farei, ma e' giusto per capire se ci starebbe o no in un futuro.
L'arredamento e' solo per rendersi conto degli spazi, non e' ancora quello reale. Alla mia ragazza piacerebbe avere una cucina ad isola, ma anche qui e' da valutare per una questione di spazi.

Di questa idea, cambierei il bagno in camera, tornando a quello originale (con l'ingresso dal disimpegno e larghezza 154) e rimpicciolirei di conseguenza quello per gli ospiti che diventerebbe largo 130. Inoltre la lavatrice la metterei fuori, nel balcone verandato che ha gia' l'attacco dell'acqua.
La cabina armadio la farei larga 120.
Cosa ne pensate? Altre idee?




